158㎡三居美式风格冀兴尊园
发布时间:
2017年04月08日
小区:冀兴尊园 面积:158㎡ 户型:三居 风格:美式风格
设计说明
一直觉得,爱美式的人,应该是浪漫的,骨子里的浪漫射出来,就是柔和的居家的线条和温润灯光。这里将美式的精致与慵懒融合得恰到好处,奶茶色的主色调,整体空间强调自然又给人满满的温暖感。
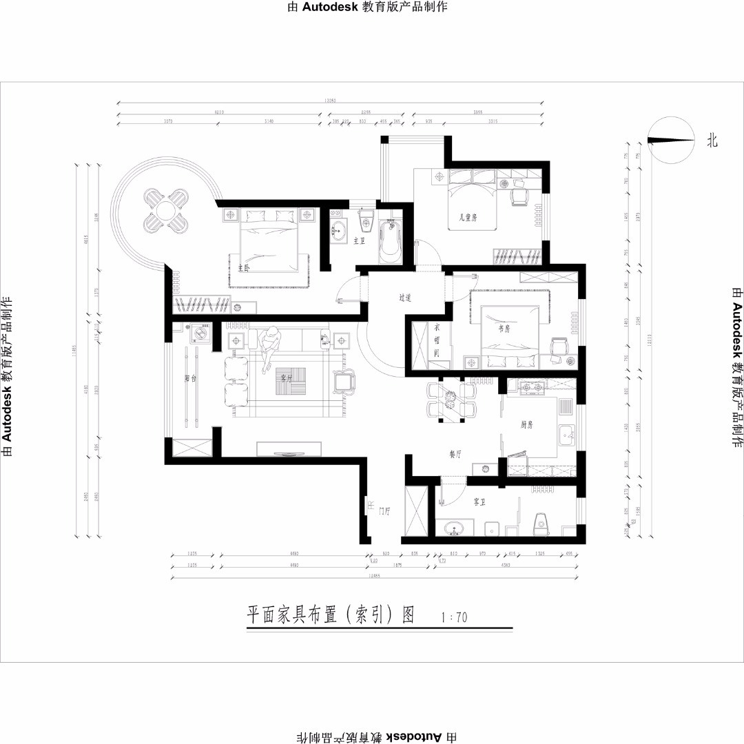
户型图

卧室



卫生间


客厅




厨房

餐厅

一直觉得,爱美式的人,应该是浪漫的,骨子里的浪漫射出来,就是柔和的居家的线条和温润灯光。这里将美式的精致与慵懒融合得恰到好处,奶茶色的主色调,整体空间强调自然又给人满满的温暖感。











