137㎡四居美式风格保利心语
发布时间:
2017年02月18日
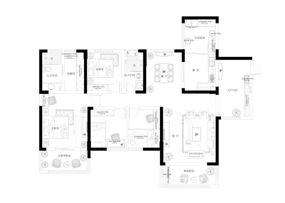
小区:保利心语 面积:137㎡ 户型:四居 风格:美式风格
设计说明
1、本套方案属于小清新美式风格,以浅色为基调色,简介大气的空间设计、别致电视墙为中心,精美的背景墙为衬托,使得以客厅、餐厅为中心的整个居家空间显得高贵而典雅、温馨而时尚,从而使得温馨、舒适、浪漫、奢华、时尚、高品位空间设计效果得以表现出来。
2、设计师对功能区域进行了局部调整与改造,充分满足了业主的功能需要,并注重了整体设计的每个细节,合理有效地运用了每个功能空间,整个空间给人以清新柔和,时尚而不乏温馨。
户型图

卧室

客厅


厨房





京公安网备11010502040911