260㎡复式其他绿地中心
发布时间:
2017年02月18日
小区:绿地中心 面积:260㎡ 户型:复式 风格:其他
设计说明
本案的设计风格为简美式。所谓简美式主张纯朴的自由感,摒弃过多的琐碎与繁杂,体现简美式纯粹、沉稳、大气的特点。
从色彩上来讲,主要运用深咖色,米色为辅色,明暗对比强烈,使整个设计的颜色层次丰富。从空间分割来讲,合理分布客厅、餐厅、卧室、视听间等空间,为客户提供多功能的空间使用感受,提高空间的使用率。从材质上来讲,一楼公共区域大多采用墙板、石材、墙砖等材料凸显客厅的大气与华丽,对于二楼的居住空间,主要以艺术漆以及墙纸为主,使空间更加温馨与舒适。
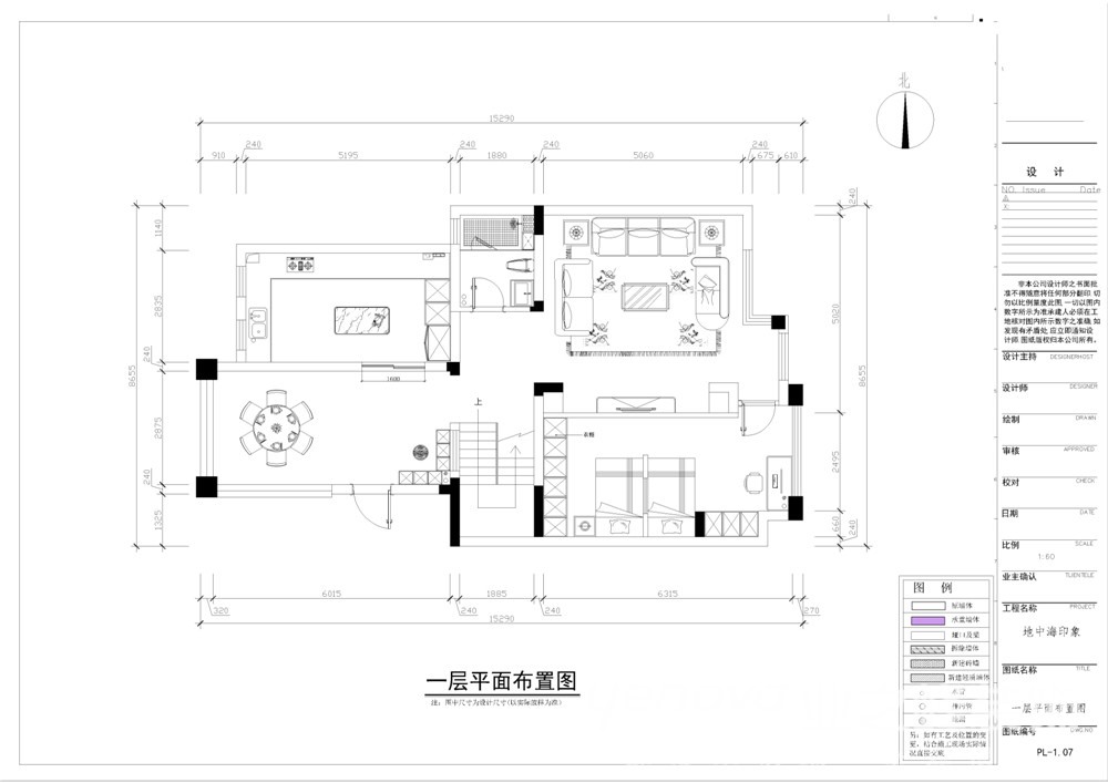
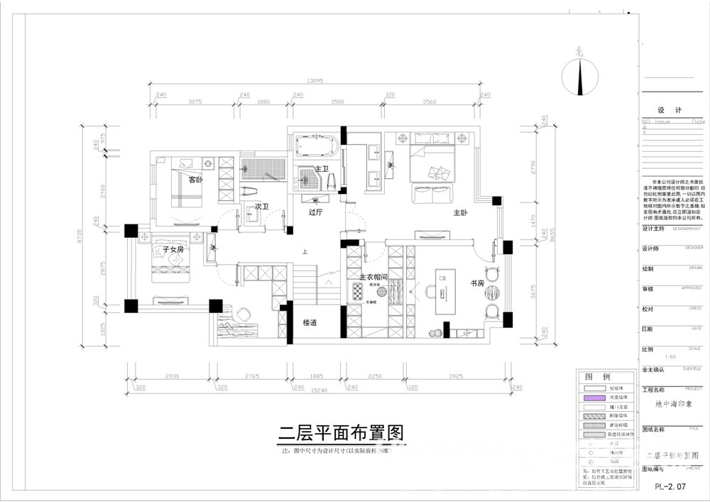
户型图

餐厅

卧室


客厅






京公安网备11010502040911