276㎡四居混搭风格四海云庭
发布时间:
2017年02月18日
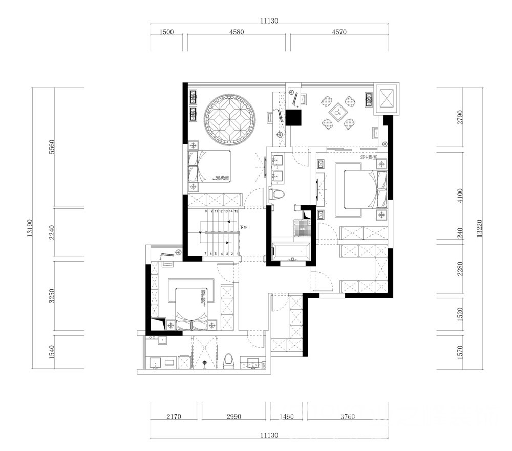
小区:四海云庭 面积:276㎡ 户型:四居 风格:混搭风格
设计说明
设计师说明:
本案整体风格为港式与现代的混搭,业主是一对年轻夫妻育有一个四岁的小孩,并且业主要求自然简洁地展示出港式风格。因此在本案中采用丰富的色彩(如果绿色、深蓝色等)、大胆的造型、艺术石材以及金属线条勾勒出该风格的突出点;所有的灯具提供柔和、偏暖的灯光,让整体素雅的居室不会有太多的冰冷感觉。整体家居饰品烘托居室的格调,平衡居室内色彩、图案、明暗、大小等关系。
户型图

客厅


卧室

餐厅

玄关





京公安网备11010502040911