128㎡三居现代简约风格紫薇曲江意境
发布时间:
2017年02月16日
小区:紫薇曲江意境 面积:128㎡ 户型:三居 风格:现代简约风格
设计说明
约不等于简单,它是经过深思熟虑后经过创新得出的设计和思路的延展,不是简单的“堆砌”和平淡的“摆放”。本案中,装饰上讲求简而精,在相应位置摆上合适的摆件,以突出个性和美感。
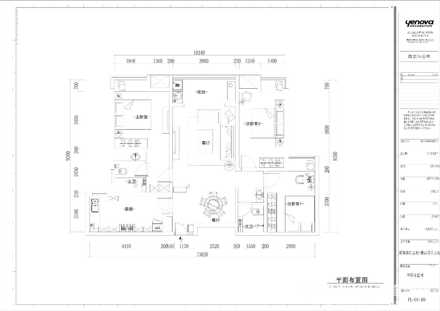
户型图

客厅




餐厅

玄关

约不等于简单,它是经过深思熟虑后经过创新得出的设计和思路的延展,不是简单的“堆砌”和平淡的“摆放”。本案中,装饰上讲求简而精,在相应位置摆上合适的摆件,以突出个性和美感。






