216㎡四居混搭风格远大都市风景
发布时间:
2016年12月28日
小区:远大都市风景 面积:216㎡ 户型:四居 风格:混搭风格
设计说明
本设计方案属于简约混搭风格。本案以简洁明快的设计风格为主调。客厅电视墙背景墙运用了深色木作和皮质软包相结合,提升了整个客厅的厚重感,沙发背景墙只做了简单的处理,适度的装饰使家居不缺乏时代气息,并紧跟着时尚的步伐,也满足客户的混搭乐趣
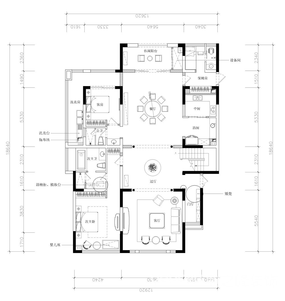
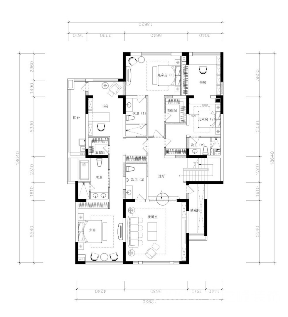
户型图

客厅



卫生间

卧室





京公安网备11010502040911