240㎡别墅现代简约风格蓝光紫檀山
发布时间:
2016年12月22日
小区:蓝光紫檀山 面积:240㎡ 户型:别墅 风格:现代简约风格
设计说明
现代风格是比较流行的一种风格,追求时尚与潮流,非常注重居室空间的布局与使用功能的完美结合。现代主义也称功能主义,是工业社会的产物,其最早的代表是建于德国魏玛的包豪斯学校。其主题是:要创造一个能使艺术家接受现代生产最省力的环境---机械的环境。这种技术美学的思想是本世纪室内装饰最大的革命。
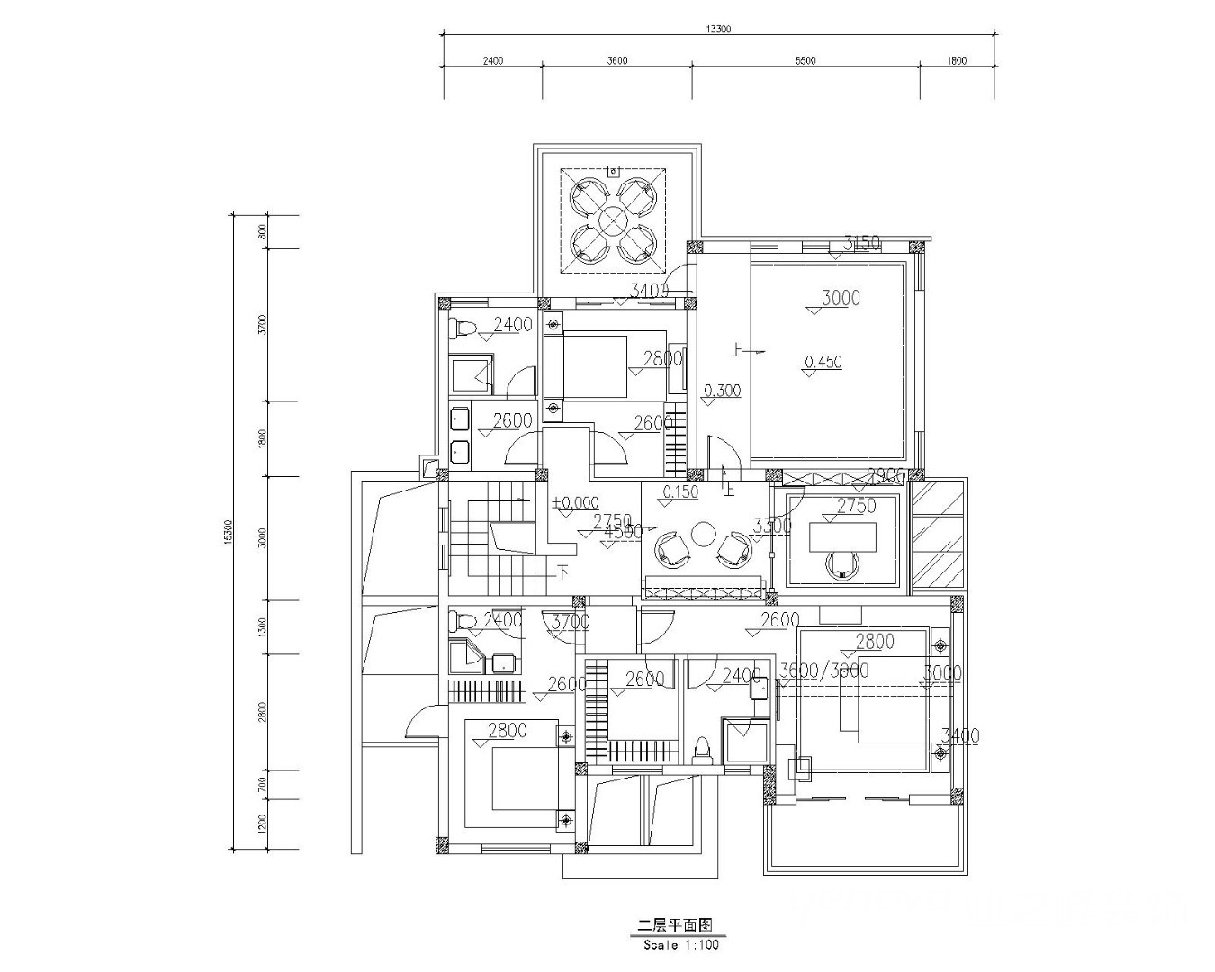
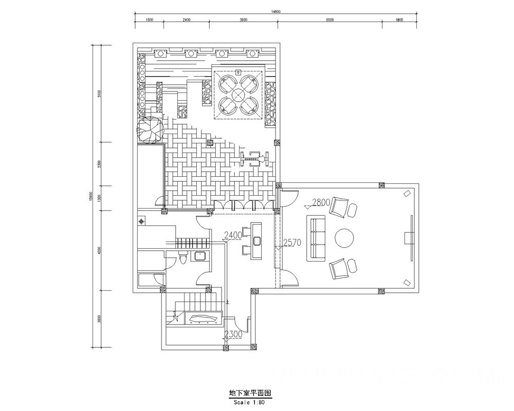
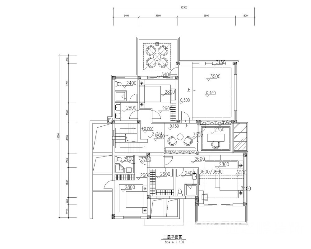
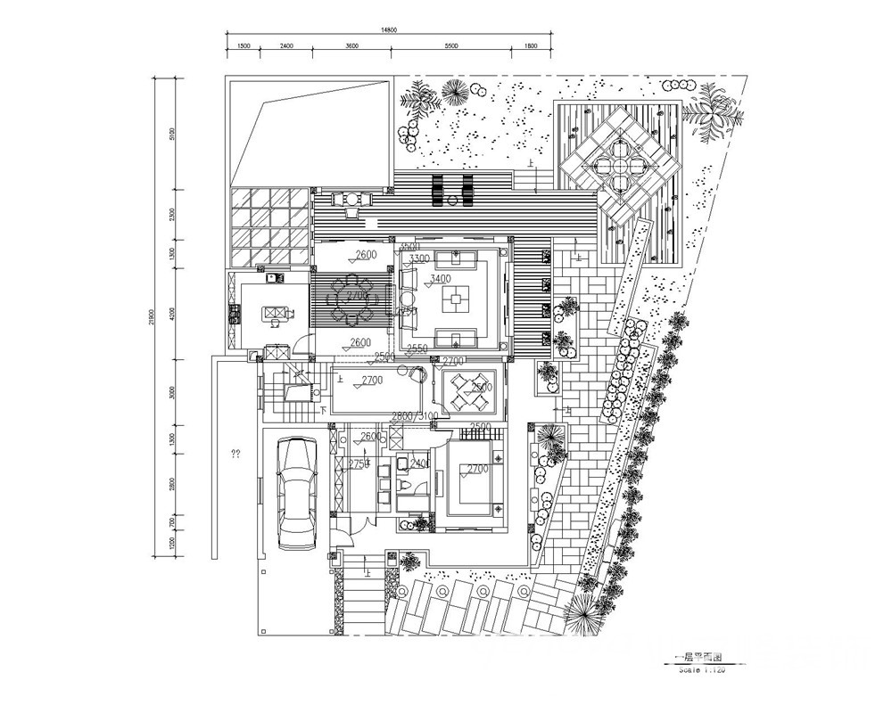
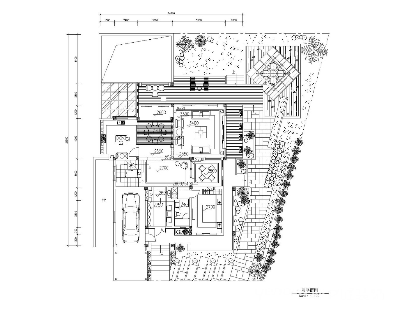
户型图

客厅







休闲区



玄关

餐厅





京公安网备11010502040911