380㎡别墅简欧风格崂山私家别墅
发布时间:
2016年12月16日
小区:崂山私家别墅 面积:380㎡ 户型:别墅 风格:简欧风格
设计说明
霖泉潭山庄位于崂山区,毗邻崂山风景区,是一个风景秀丽的别墅山庄。
根据户主的要求,设计纯净的简欧风格。简欧风格是欧式装修风格的一种,多以象牙白为主色调,以浅色为主深色为辅。相对比拥有浓厚欧洲风味的欧式装修风格,简欧更为清新、也更符合中国人内敛的审美观念。
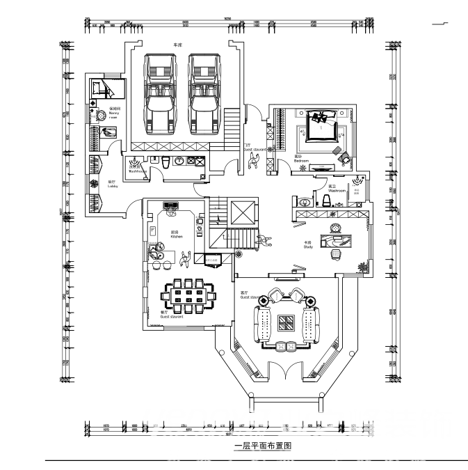
户型图

卧室

书房

餐厅

客厅








京公安网备11010502040911