184㎡三居美式风格金城一号
发布时间:
2016年12月16日
小区:金城一号 面积:184㎡ 户型:三居 风格:美式风格
设计说明
本案设计,简约时尚且不失沉稳大气,舒适的材质与简约的色彩基调相结合。此方案,在设计上也比较别致。层次分明的体现着生活空间的动线跟休闲空间的惬意。不需要太多的修饰自然拼合。
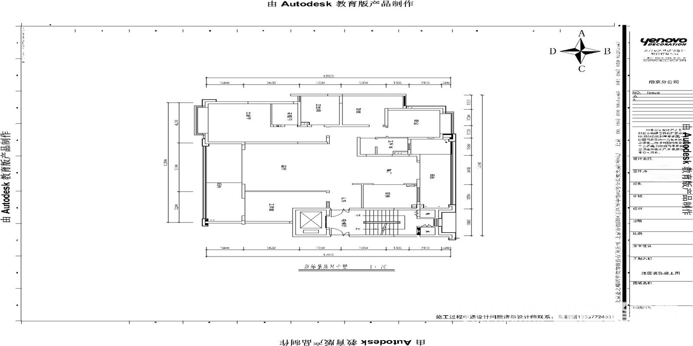
户型图

客厅



玄关

餐厅

卧室

本案设计,简约时尚且不失沉稳大气,舒适的材质与简约的色彩基调相结合。此方案,在设计上也比较别致。层次分明的体现着生活空间的动线跟休闲空间的惬意。不需要太多的修饰自然拼合。






