102㎡三居美式风格易道郡-玫瑰公馆
发布时间:
2016年09月11日
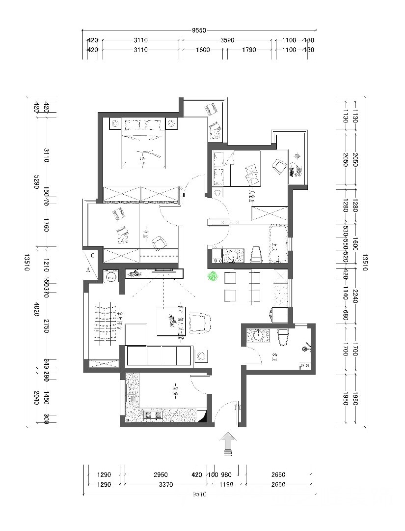
小区:易道郡-玫瑰公馆 面积:102㎡ 户型:三居 风格:美式风格
设计说明
案的设计风格为简约欧式,营造典雅、自然、高贵的气质、浪漫的情调是本案的主题。 简约、质朴的设计风格是众多人群所喜爱的,生活在繁杂多变的世界里已是烦扰不休,而简单、自然的生活空间却能让人身心舒畅,感到宁静和安逸;藉着室内空间的解构和重组,便可以满足我们对悠然自得的生活的向往和追求,让我们在纷扰的现实生活中找到平衡,缔造出一个令人心弛神往的写意空间。
户型图

客厅



卧室

餐厅

卫生间





京公安网备11010502040911