90㎡二居新中式风格博雅小区
发布时间:
2016年09月04日
小区:博雅小区 面积:90㎡ 户型:二居 风格:新中式风格
设计说明
本方案的设计风格为中式风格,在所有室内设计中风格搭配尤为重要,中式比较注重古典古香的基调,家具与装饰的搭配,有雕饰的装饰品以及灯光等等都可以添加中式的原汁原味。
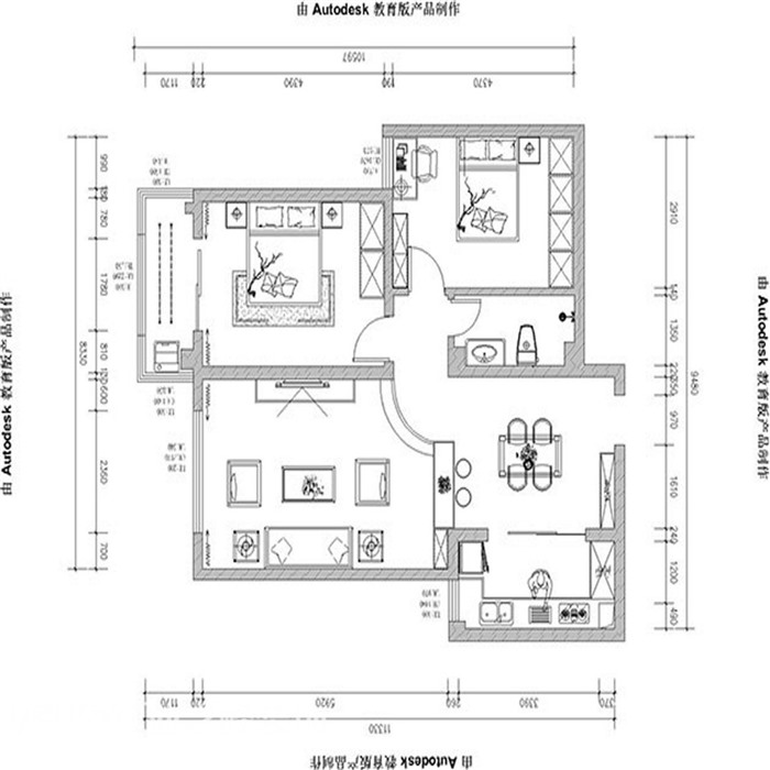
户型图

客厅




卧室

餐厅



本方案的设计风格为中式风格,在所有室内设计中风格搭配尤为重要,中式比较注重古典古香的基调,家具与装饰的搭配,有雕饰的装饰品以及灯光等等都可以添加中式的原汁原味。








