120㎡三居新中式风格欧景园
发布时间:
2016年09月04日
小区:欧景园 面积:120㎡ 户型:三居 风格:新中式风格
设计说明
本方案的设计风格为简约中式风格,整体空间以暖色调为主,搭配简约中式木色软装家具,营造舒适明亮的简约新中式。在满足中式风格的基础上将空间和情感简洁化,整体氛围简洁明朗。卧室以满足空间的功能需求为设计出发点。
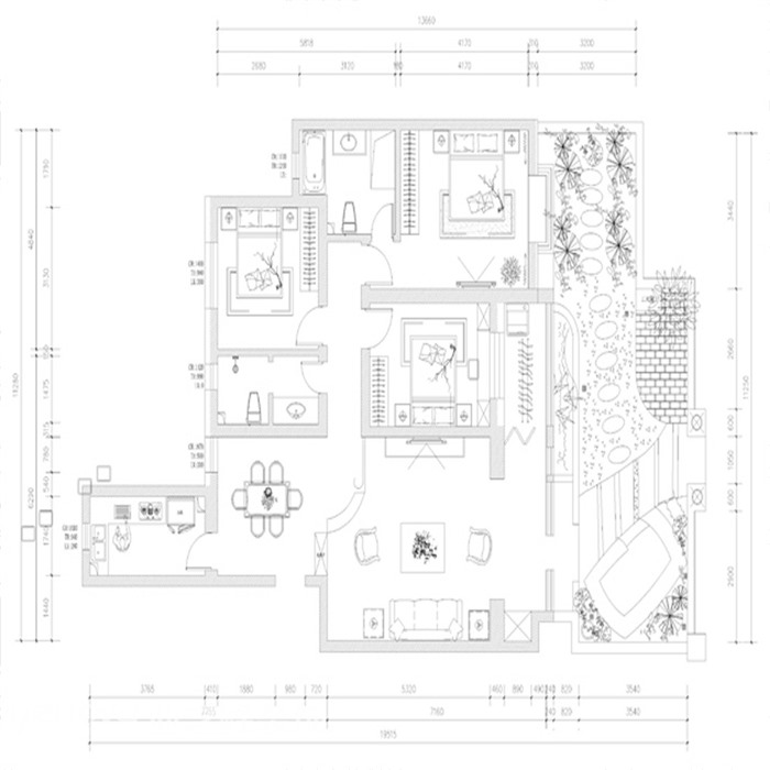
户型图

客厅


休闲区


卧室

餐厅







京公安网备11010502040911