280㎡复式新中式风格千禧龙苑
                  发布时间:
                  2016年09月01日
                
 小区:千禧龙苑 面积:280㎡ 户型:复式 风格:新中式风格
设计说明
 此新居位于美丽的青岛石老人区域,花园洋房的建筑构造,业主购买的是五楼加六楼,作为客户颐养晚年的新居住所,可谓环境优美,接近自然。
户型通风效果和采光效果比较好,但是厨餐区空间划分不好,楼梯洞口预留太小。作为老两口场常住的房子,不需要太多卧室。钟爱中式家具的业主有很多中式古老家具,新居定位为极富中式韵味的古典中式风格。
客厅中堂布置,电视墙面雕花隔断结合文化石,墙面满圈回形纹造型,门厅假山石,顶面两个拱圆形造型,以及中式花格摆件装饰,整体设计营造出了古朴、怀旧、庄重、儒雅,从而达到中式风格的极致,实现客户心目中家的梦想。
厨餐区 - 把厨房阳台化为厨房空间和餐厅完全结合,即就餐方便,又增加了空间的大气感。
阁楼休闲区 - 作为老人娱乐运动的区域,酒吧台面与台球案放于一起,成为了朋友聚会钟爱的空间。
客厅整体区 – 深木色整体搭配中式花格,回形纹护墙板,文化石等等的运用,使得中式效果达到极致。
门厅区 – 作为入户门厅,假山石的制作,错层设计,稍带欧式造型的围栏,顶面中式大吊顶,整体营造出优雅恬静的入户门厅。
沙发区域 – 条案、八仙桌、太师椅、罗
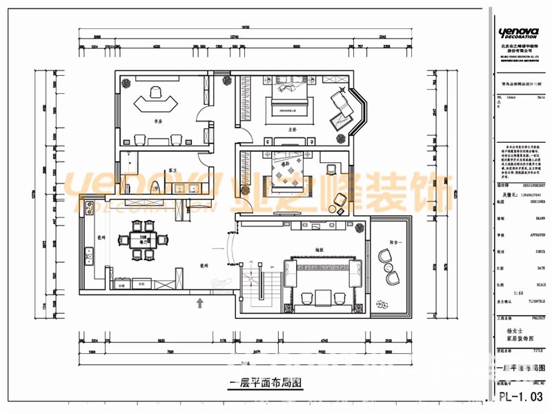
户型图
 
客厅
 




餐厅
 
玄关
 

 


京公安网备11010502040911