207㎡复式新古典风格锦城世家
本案为一外地客户,夫妇两喜欢古点欧式的大体感觉,确又不想做的那么复杂。常年就只有两人居住,过年的时候儿子会回来居住,亲戚也会回来。由于是二级城市,许多生活习惯就要求设计师要考虑的。比如过年过节的时候朋友会送点土鸡、鱼啊什么的,朋友来了会在家打打麻将,会客吃饭的时候会需要很大的桌子等等。
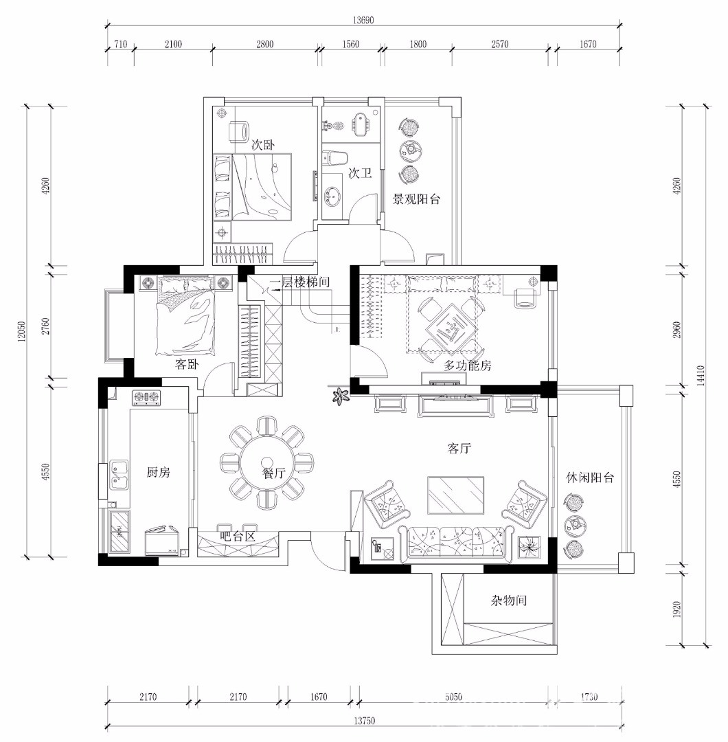
首先设计师到现场勘察发现房子空间比较大,特别是客厅足够大,而客厅配套的卧室是长方形结构。一楼还有个很小的客房,基本上放了床就放不下衣柜。楼梯下方正对入户门位,给人的感觉很压抑。餐厅够用,但是和客厅相对而言实在是太小。入户的卫生间也显得鸡肋。二楼的空间还算大,把客厅上方搭建后就拥有一个非常大的主卧室。客户不想要衣帽间,而要一个书房。原始有个房间对应上来的书房门的位置在一个通道上,通道显的狭长,并且通道下方就是一楼的通道位置,相对压抑。二楼楼梯上来后有一平台,但是非常小,而配套了一个卫生间的小衣帽间确非常浪费,卫生间也相对较小。
在经过具体分析后,结合现场的水电位以及结构,设计师作出了大胆的调整。首先把入户的卫生间取消,把空间让给了餐厅,这样就有个能和客厅完美匹配的大餐厅。厨房和以前的生活阳台合并,让厨房也很大,可以安放当地人都喜欢使用的冰柜。而餐厅改造后会有个凹处,设计师巧妙的做了把吧台位。多功能房暂时考虑了麻将区域,但是为了以后能扩展成卧室使用,所以电位也按照卧室的摆放而设计。扩展的阳台设计了一个次卧、公用卫生间、景观阳台,使得整体使用功能进一步扩展。而客卧由于很小,而楼梯原来的方式很不合理,所以设计师把楼梯进行了调整,使楼梯下方在一个隐蔽位置,且利用楼梯下面的空间给客卧预留出了衣柜的空间。对于二楼,设计师把书房和主卧套成一体使用,把原来进入书房的门封闭了。把书房门外原有的平台也取消掉,使书房的使用更合理更充分。二楼楼梯间也把原有空间和原有衣帽间和卫生间进行了重新分配,使原来的楼梯间空间变大,不那么压抑,也使主卫空间变大,更能合理使用。对于阳台则把洗衣间和公用卫生间考虑到了一起,提高了使用率,也把这个相对封闭的空间放在了一边。而在卫生间外也考虑了当地人会使用的养殖区域,第一方便养殖,也不会因为这些家禽的味道传到其他空间。
总体来说设计师在客户确定风格的前提下,很好的把握了当地人的生活习惯,把多个空间重新整合分配使用,使得空间美感和实用主义得以共存。











京公安网备11010502040911