190㎡复式美式风格香颂岛
发布时间:
2016年09月01日
小区:香颂岛 面积:190㎡ 户型:复式 风格:美式风格
设计说明
本案为外地一楼盘样板间设计。在尽量尊重原始土建结构设计的前提下进行设计。本户型是一楼跃负一楼,由于户外就有花园,采光相对不是很好,于是选用了自然休闲气息更浓烈的美式小清新感觉。
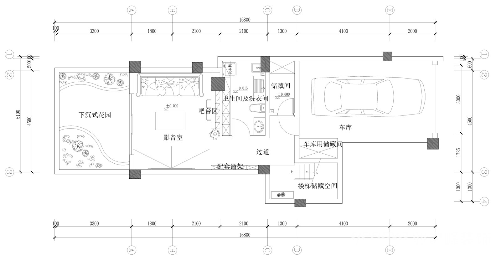
户型图

餐厅

卧室

客厅



本案为外地一楼盘样板间设计。在尽量尊重原始土建结构设计的前提下进行设计。本户型是一楼跃负一楼,由于户外就有花园,采光相对不是很好,于是选用了自然休闲气息更浓烈的美式小清新感觉。





