150㎡三居新中式风格悦城
发布时间:
2016年07月20日
小区:悦城 面积:150㎡ 户型:三居 风格:新中式风格
设计说明
风格定位中式风格,所以在吊顶“和”(家“和“万事兴,”“和和”美美)的造型及地砖元素上都体现了中式的传统文化。这个户型同样存在电视背景墙尺寸偏小的问题,所以在造型上也考虑了隐形门造型,使得空间更显大气。功能布局上合理的利用了储藏间、冷藏室,把公共卫生间及小卧室的空间都充分扩大。
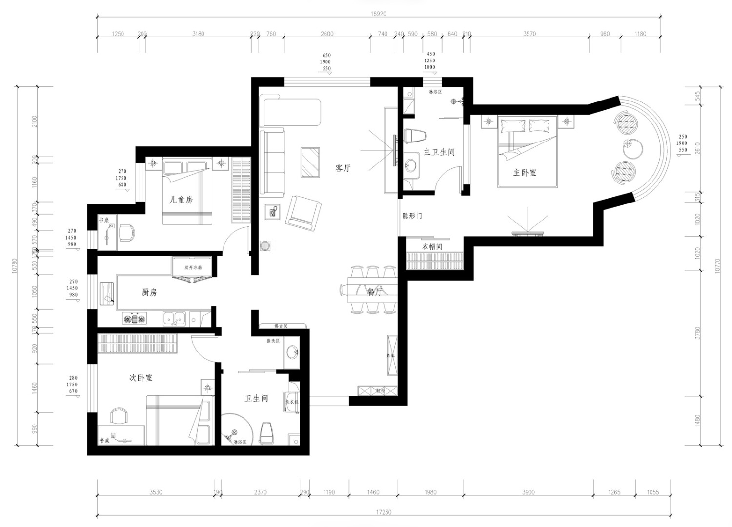
户型图

玄关

客厅


卧室





京公安网备11010502040911