248㎡四居法式风格中海九号公馆
发布时间:
2016年07月20日
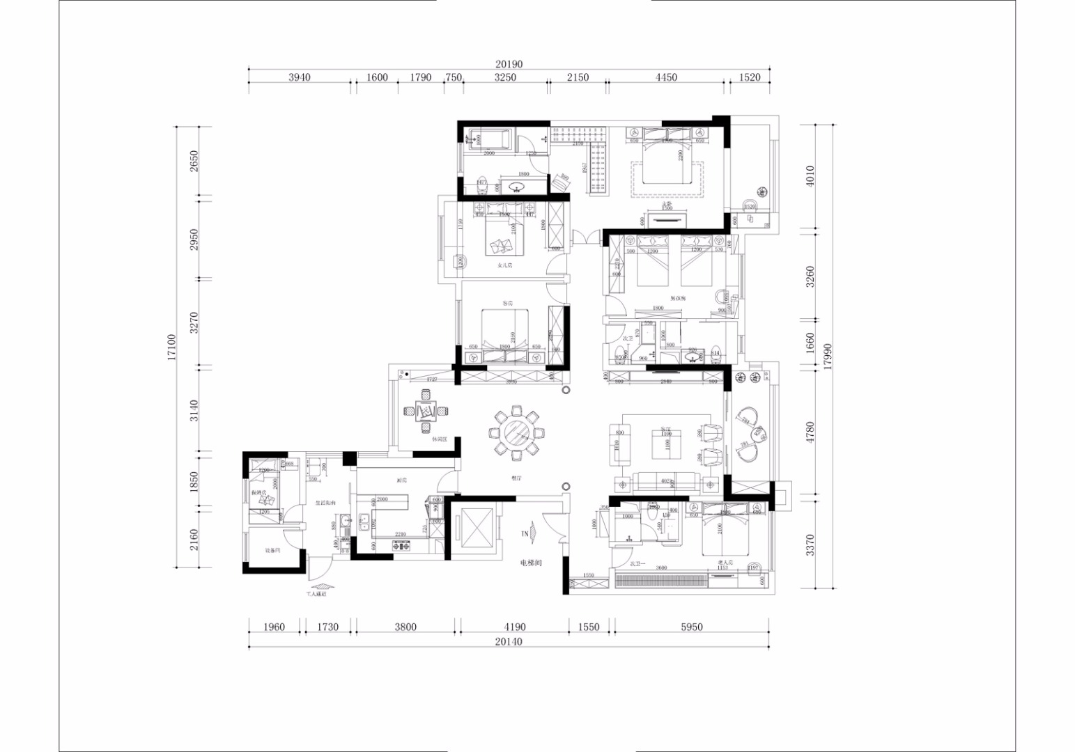
小区:中海九号公馆 面积:248㎡ 户型:四居 风格:法式风格
设计说明
不同的家装风格演绎出各样的家园风情,含着千姿百态的生活乐趣,追求简练、明快、浪漫、单纯和抽象的法式风格,让我们的家园更加温馨浪漫。法式的居室有的不只是豪华大气,更多的是意境和浪漫。通过完美的线条,精益求精的细节处理,带给家人不尽的舒适触感,实际上和谐是法式风格的最高境界。法式浪漫装修风格最适用于本案,若空间太小,不但无法展示其风格气势,反而对生活在期间的人造成一种压迫感。当然,还要具有一定的美学素养,才能善用法式风格,否则只会弄巧成拙。将法式家居的奢华与现代家居的实用性完美地结合。电视墙自然不可或缺,它被安置在空间最重要的位置,与沙发背景色彩丰富的油画相呼应,为空间提供了一个视觉中心。

户型图

客厅


卧室






京公安网备11010502040911