90㎡二居美式风格 中海·开元壹号
发布时间:
2016年06月21日
小区: 中海·开元壹号 面积:90㎡ 户型:二居 风格:美式风格
设计说明
开元壹号90㎡ 设计方案
工程造价
预计工程造价(半包工程,施工+辅料):53000元左右
预计主材花费:120000元左右
主材品牌选择建议: 地砖:伊派爱马仕
洁具:格拉仕伦
木门:宾图
橱柜:志邦、MI菠萝
衣柜:乔菲
吊顶:友邦
壁纸:雅幕
设计说明:业主钟爱美式风格,希望在优雅、舒适的居住环境中获得身心的全然放松。经过与业主的沟通,决定舍弃营造表面的风格转而通过利用软饰打造经济、实用的实用空间。设计师采用纯粹的设计手法,重新构建了一个难得的涵养大宅,让我们回归宁静的生活。公共空间以质朴做旧的壁纸为墙面为基调,穿插其中的淡绿色,力求将空间不同的功能区域加以联结。
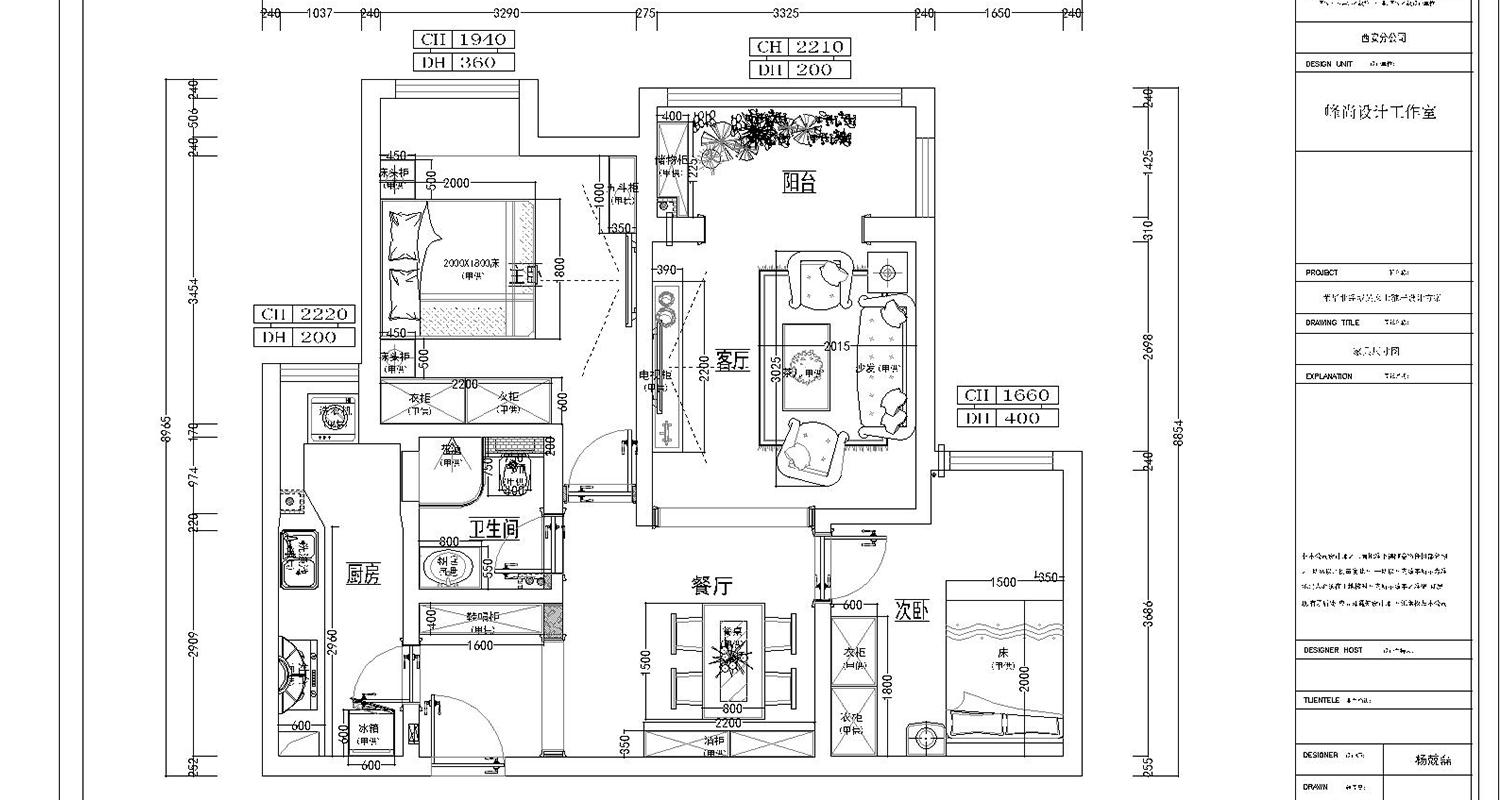
户型图

客厅


卧室





京公安网备11010502040911