170㎡三居简欧风格曲江公馆和园
发布时间:
2016年06月21日
小区:曲江公馆和园 面积:170㎡ 户型:三居 风格:简欧风格
设计说明
开元壹号170㎡ 设计方案
工程造价
预计工程造价(半包工程,施工+辅料):110000元左右
预计主材花费:240000元左右
主材品牌选择建议: 地砖:欧神诺,简一
洁具:格拉仕伦
木门:唐鼎
橱柜:志邦
衣柜:乔菲
吊顶:友邦
壁纸:雅幕
设计说明:本案以欧式风格为主题,在设计上追求空间变化的连续性和形体变化的层次感,整体以欧式和后现代的手法进行设计,简单的线条和几何图案,与局部的相对繁琐形成鲜明对比,带给我们不一样的视觉及触觉享受。色彩上以经典的米黄色与白色为主导,再加上大理石、雕花隔断、硬包、壁纸、木饰面、钛金条等材料的贯穿融合,既突显空间的凹凸感,又表现出现代时尚和优雅高贵,符合中国人的审美价值。
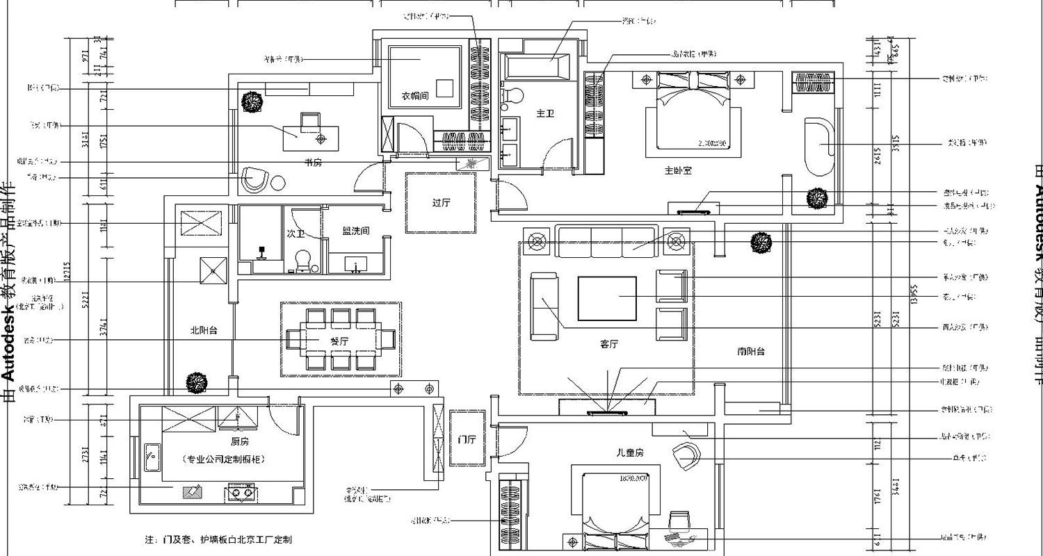
户型图

阳台

客厅







京公安网备11010502040911