285㎡复式新中式风格首开铂郡
发布时间:
2014年07月11日
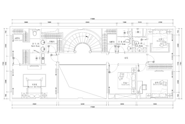
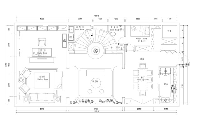
小区:首开铂郡 面积:285㎡ 户型:复式 风格:新中式风格
设计说明
本案位置在三里屯附近,业主是中年夫妇,要求中式风格,体现中式的文化和底蕴,设计师在和业主沟通后重要把握了空间格局的划分和颜色上的搭配,造型灵气干练,氛围很好的融入了业主的气质
客厅




卧室

餐厅

本案位置在三里屯附近,业主是中年夫妇,要求中式风格,体现中式的文化和底蕴,设计师在和业主沟通后重要把握了空间格局的划分和颜色上的搭配,造型灵气干练,氛围很好的融入了业主的气质





