203㎡复式新中式风格保利198
发布时间:
2014年11月18日
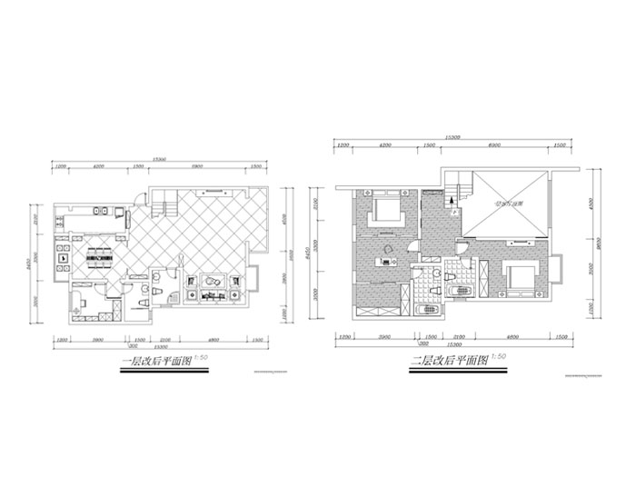
小区:保利198 面积:203㎡ 户型:复式 风格:新中式风格
设计说明
设计说明:本案业主为40岁左右夫妻,女儿在外地读书偶尔回家。业主自己是做古董生意,对中式的一切情有独钟,因为整体建筑结构为现代式住宅,在打造中式房屋的时候改造相对较多,原本客厅餐厅位置都为改造后的结果,客厅占用了楼下原本主卧室的位置,客厅尽可能的放大面积来体现中式结构。色调上都以花梨木原木本色来装饰,其他配色以深暖色为主,在装正的中式布局下体现出无限的温馨。
客厅


卧室


楼梯





京公安网备11010502040911