450㎡别墅新古典风格子锋苑
发布时间:
2015年01月28日
小区:子锋苑 面积:450㎡ 户型:别墅 风格:新古典风格
设计说明
风格定位:非繁杂而生富贵,不狂傲而显气势。
设计说明:文脉意蕴,满室书香,移步换景,一堂雅气,此为明清以来逐步形成的中国传统风格的装修,最能体现我们民族的家居风范与传统文化的审美意蕴,并且有其不过时的独特特征。
设计意图:追求的是一种修身养性的生活境界。总体布局多采用对称式的布局方式,格调高雅,沉重而内敛,书卷味道浓,凸显大气,高贵,文雅之氛围。而在装饰细节上崇尚自然情趣,花鸟、鱼虫等精雕细琢,富于变化。 居室内不易用较多色彩装饰,以免打破优雅的居家生活情调。色彩不宜明快,以沉稳的色调为主。绿色尽量以植物代替,如吊兰、大型盆栽等等。家具陈设同样讲究对称,极重文脉意蕴,擅用字画、卷轴、古玩、匾幅、瓷器、宫灯、屏风、博古架、山水盆景等加以点缀,渲染出满室书香,一堂雅气。 装饰手法上多采用借景、藏景等手法,以达到移步换景的效果。小居室,大洞天。
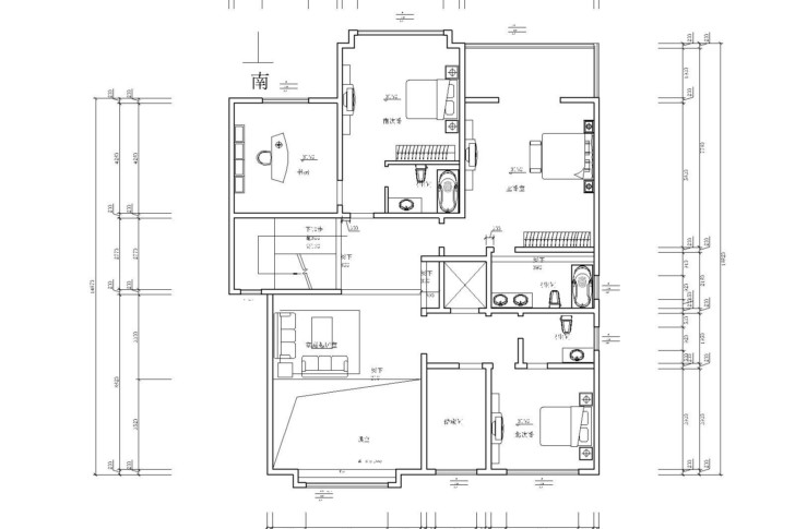
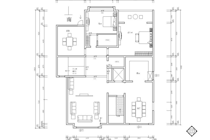
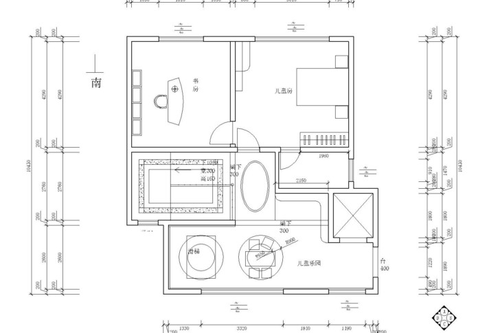
户型图

客厅








卧室




书房



儿童房




餐厅





京公安网备11010502040911