350㎡别墅新中式风格中海紫御东郡
发布时间:
2015年01月28日
小区:中海紫御东郡 面积:350㎡ 户型:别墅 风格:新中式风格
设计说明
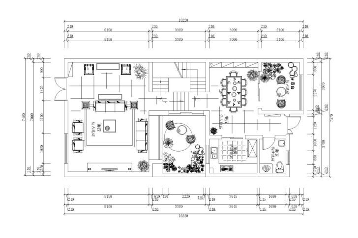
设计中一楼功能划分明确,比如设计了入户庭院,设计两个入口,中间入户处设计了较大的门厅,尤其门厅考虑了山东的人文文化,入户后正面是完整的玄关,右侧做一面墙的鞋帽柜,楼梯间将会客区于就餐区隔开,让家庭成员很方便的到达每一个角落,非常舒适
二楼三楼为卧室书房区,划分为四间卧室一间书房,三楼作为书房,阳光房可以用于差异休闲,可谓养生学习的区域,这样二楼所有房间都做为卧室。
本户型最大的缺点就是客厅,第一对于这个档次的别墅来说,面积太小,主要原因是每个墙面的不完整沙发会客的地方太紧凑,传统的影视墙没法做。
本案为新中式风格,运用深色实木线条和中式壁纸,和有着现代气息的石材,稳重大气,用现代的布艺沙发,和当代设计的艺术品有机的融合。
户型图

客厅







卧室








京公安网备11010502040911