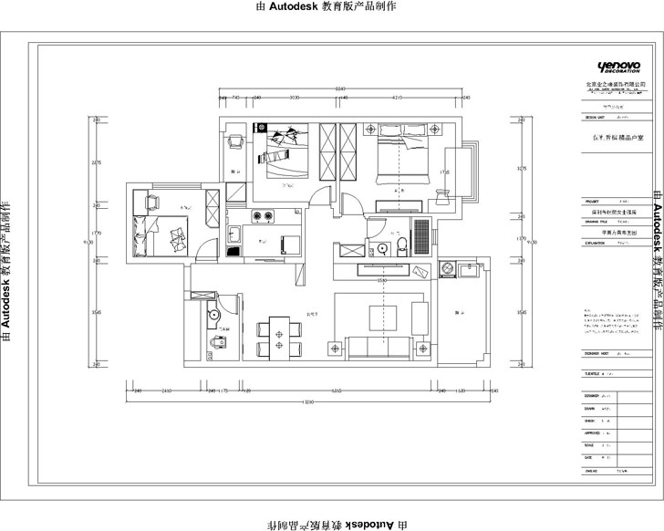
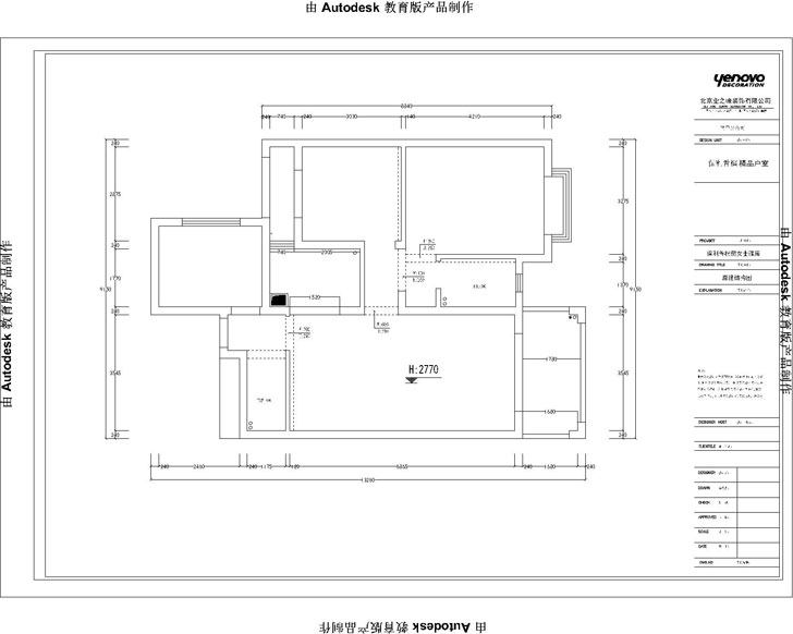
91㎡三居现代简约风格保利香槟
发布时间:
2015年09月08日
小区:保利香槟 面积:91㎡ 户型:三居 风格:现代简约风格
设计说明
初与客户接触是业主的姐姐来公司,带着他们商量的要求来公司了解的,经过跟客户姐姐的接触,了解业主夫妇是常年在外做生意的。装修就委托给姐姐,房子本身是装给父母带小孩的,经过双方沟通确定,装修丈量尺寸,量尺寸与客户见面,整个沟通过程中,很愉快和学习。客户很健谈,很快就确定装修事宜。风格上确定为自由放松,时尚的感觉,所以整个设计当中围绕着居住人的感情,氛围出发。
卧室


客厅



餐厅





京公安网备11010502040911