139㎡三居其他中海东郡
发布时间:
2015年09月10日
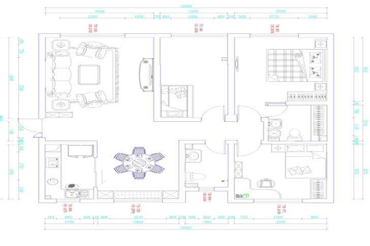
小区:中海东郡 面积:139㎡ 户型:三居 风格:其他
设计说明
本案设计为浅色简欧,业主是80后年轻夫妻,有一个可爱的小女儿,考虑到年轻人对家的感觉,时尚,浪漫,温馨为主调,所以方案整体定位为简欧风格。全屋木地板的使用主要考虑了小女儿喜欢光脚在地上玩耍,木质的质感相对温润。顶面墙面都以最简洁的手法表现,给人简约不简单,细致周到的家居生活体验。
客厅





儿童房

卧室

餐厅

阳台





京公安网备11010502040911