131㎡三居其他西美五洲天地
发布时间:
2015年09月10日
小区:西美五洲天地 面积:131㎡ 户型:三居 风格:其他
设计说明
定位于简欧风格,力求营造出一种使空间尽情挥洒源远流长的神韵。在给予空间生命力的同时也饱含文化情趣。选材方面,欧式惯用的白色材质外,还用了咖色墙漆、镜面等现代材料,大大提升了原质感的对比效果,在表现尊贵的同时还增添了几分现代感,本案配搭了暖色的灯光,使得空间的层次感,穿透性大大提高。家具等也很讲究,既有西式元素,又具有强烈的时代感元素。例如天花水晶灯的闪烁效果,搭配上水晶灯、镜面、挂画、饰品等完美组合,形成极具品味的装饰效果,将奢华的欧式风情演绎的淋漓尽致。
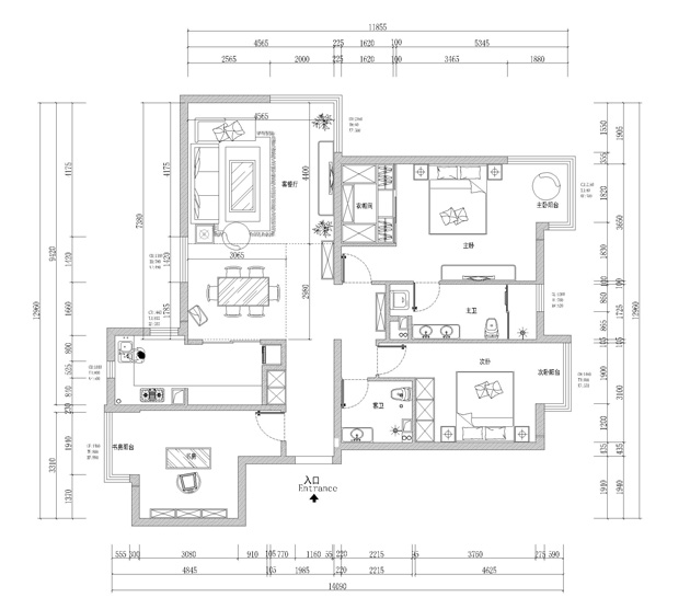
户型图

客厅




卧室



餐厅

玄关





京公安网备11010502040911