140㎡三居其他华润中央公园
发布时间:
2015年11月11日
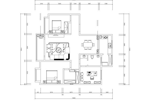
小区:华润中央公园 面积:140㎡ 户型:三居 风格:其他
设计说明
小区:华润中央公园
面积:140平米
风格:欧式风格
居室:三室两厅
设计说明:欧洲文化拥有着丰富的艺术底蕴和文化素养,开放、创新的设计理念及其华丽尊贵的姿容一直以来颇受众人喜爱与追求。无论是家具还是配饰均以其优雅、唯美的姿态,平和而富有内涵的气韵,描绘出居室主人高雅、尊贵的身份。整个设计方案的主色调为暖色,黄色糅合少量白色,使色彩看起来明亮、大方。大量的拱形造型的使用使欧式风格的特点得到明显的体客厅
卧室


书房

餐厅





京公安网备11010502040911