90㎡三居其他清水湾
发布时间:
2015年11月12日
小区:清水湾 面积:90㎡ 户型:三居 风格:其他
设计说明
业主是夫妻二人及一个3岁的可爱女儿,男业主平时出差较多,所以此次设计大部分遵循女业主的想法。
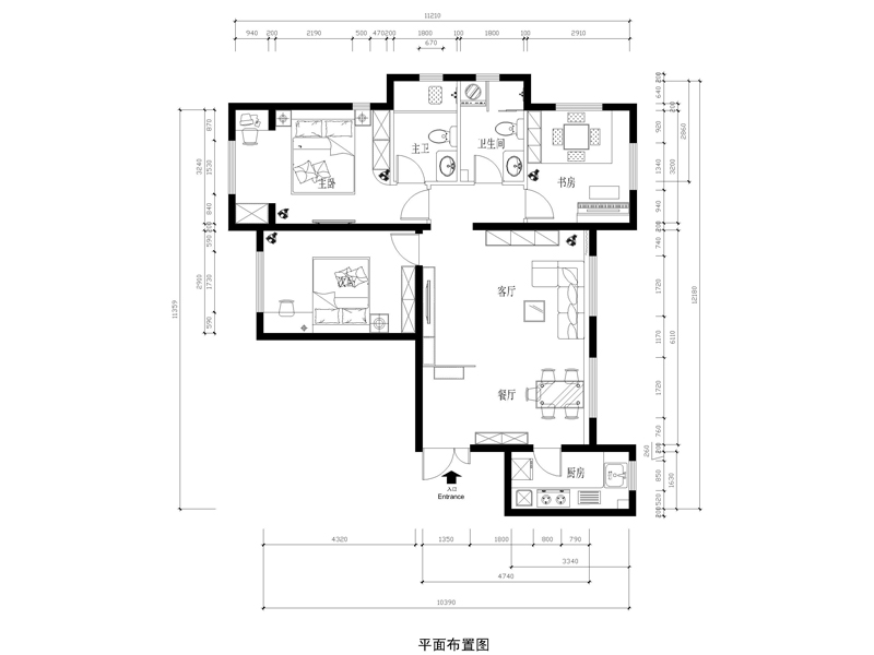
户型优缺点:
优点:整体格局功能区间分化明显,采光通透。
缺点:入户一览无余,没有遮挡隐秘的空间。
设计说明:
客餐厅:
玄关处采用1.5米高玄关,走廊的主色调为淡色,地面采用全抛釉800*800大地砖铺地,墙面采用壁纸修饰。客厅天花采用的石膏板灯池吊顶,现代塑钢餐桌,就餐时创造一个温馨浪漫的氛围。客厅吊顶周边有凹槽内藏暖色小灯管,走廊的凹槽内藏白色小灯管,起个方向引导作用,另外也可成为整个房间的普通照明。白天阳光通过地砖的反射使得整个空间更加明亮,增加空间的视觉感官,窗帘选择配置了素雅的浅色窗帘,沙发可选择卡其布面系列,整个公共空间体现的清新安宁的平和而淡定的感觉,而暖色的小灯管和彩色吊灯灯光的渲染又给这淡定的环境一丝朝气,一片温馨,冷色和暖色的相互配合,共同演奏了和谐的乐章。
主卧:
主卧墙面为浅咖色乳胶漆,黄棕色复合木地板,胡桃木色的衣柜,独立的办公区域,写字桌,一天的疲惫在这里得到释放,一杯清茶,远观整个城市灯火,心与心的交流,价值得到肯定,洗去凡尘,明天又是新的一天,又一个新鲜的生命。整个空间用素雅的颜色配合暖色的点缀,能够产生意想不到的美感。
书房:
书房为浅咖色淡粉色乳胶漆,黄棕色实木复合木地板,窗帘选择亚麻暖色调窗帘,暖暖的灯光洒满整个空间,安安心心学习,榻榻米的设计增加储物空间,同时给休闲提供一种可能,亦或者踏踏实实做个美梦。
客厅




卧室

书房





京公安网备11010502040911