126㎡二居新古典风格金帝山庄
发布时间:
2015年08月12日
小区:金帝山庄 面积:126㎡ 户型:二居 风格:新古典风格
设计说明
设计说明:把历史法国装饰艺术的发源地,一个优雅并充满浪漫气息的城市。以法式浪漫情怀为基础,还原一处具有浓郁巴黎气息品质生活空间,为业主带去浪漫,优雅的艺术生活体验!在空间布局上,强调空间整体的协调关系,在保留足够的收纳空间的同时,让其他功能的区域空间尽可能的扩大。通过丰富的材质变化,营造了浪漫和颇有情趣的空间氛围中。极具人文感和古典美,空间气质高贵不凡。
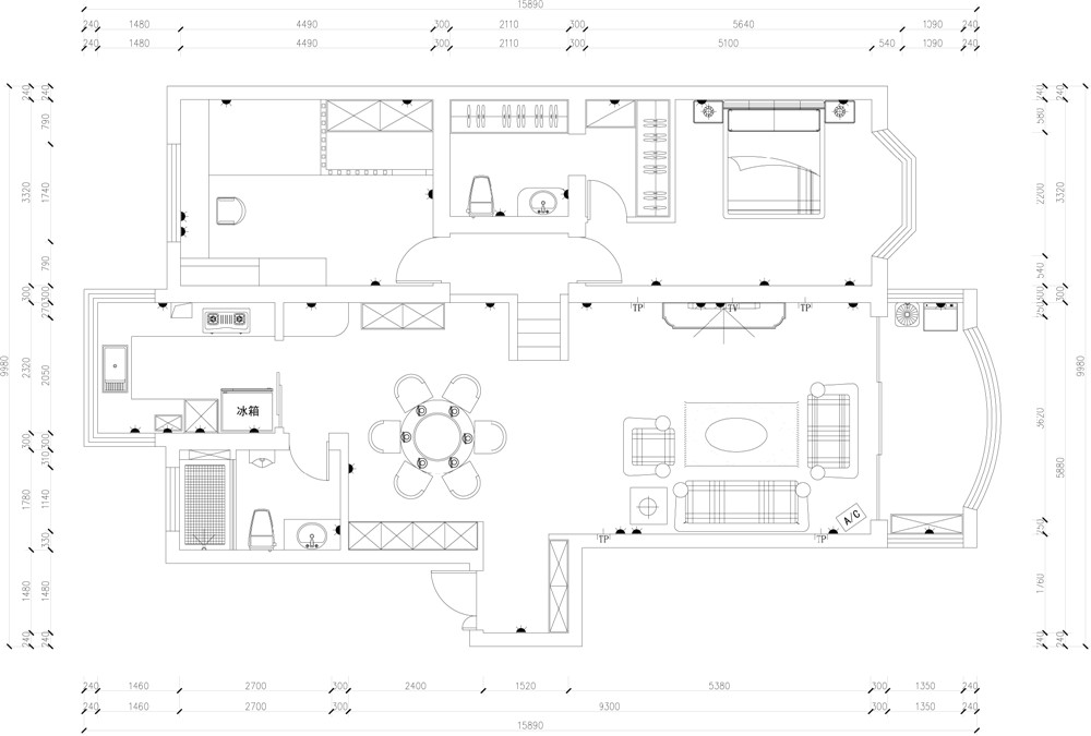
户型图

客厅




儿童房






京公安网备11010502040911