140㎡三居地中海风格世茂拾贰府
发布时间:
2015年08月12日
小区:世茂拾贰府 面积:140㎡ 户型:三居 风格:地中海风格
设计说明
设计说明:本案定义为田园风格,在室内环境中力求表现悠闲、舒畅、自然的田园生活情趣,也常运用天然木、石、藤、竹等材质质朴的纹理。巧于设置室内绿化,创造自然、简朴、高雅的氛围。在材料选择上多倾向于较硬、光挺、华丽的材质。回归自然,不精雕细刻。繁杂喧闹并且污染越来越严重的城市环境和快速的生活节奏,繁忙的工作压力让都市人重新开始对乡村生活方式感到好奇或向往。对于曾经忽视的乡间存留的独特民间艺术形式也感兴趣。“开轩面场圃,把酒话桑麻。”“采菊东篱下,悠然见南山”的生活方式得到了人们的再次捡拾和重新诠释。
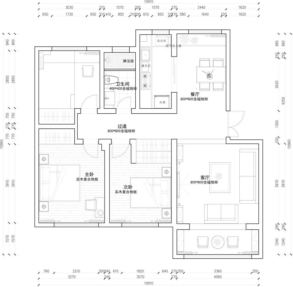
户型图

餐厅

玄关

客厅







京公安网备11010502040911