156㎡平层新中式风格嘉凯城时代城
发布时间:
2015年07月30日
小区:嘉凯城时代城 面积:156㎡ 户型:平层 风格:新中式风格
设计说明
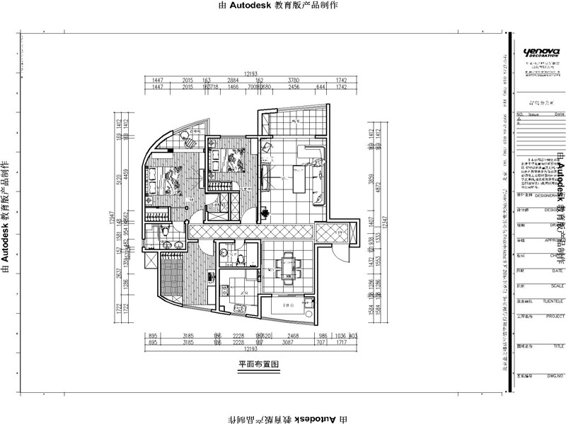
此小区位于308国道中间李村路段,繁华,生活方便。家中小两口,有一个活波可爱的三岁小男孩,男主人喜欢中式风格,女主人喜欢现代风格,中和二人喜好,做了这个新中式风格的设计。弧形墙面比较多,在书房通过书柜及增大的窗的宽度来把墙面取直。入户两面墙不一样长,通过屏风取直墙面。此设计风格线条简练,颜色对比鲜明,不但具有中式传统意境又有现代简约的舒适感觉。会使喜欢中式的年轻人眼前一亮。
户型图

卫生间

书房

卧室

儿童房

客厅




厨房





京公安网备11010502040911