141㎡平层简欧风格世茂拾贰府
发布时间:
2015年07月30日
小区:世茂拾贰府 面积:141㎡ 户型:平层 风格:简欧风格
设计说明
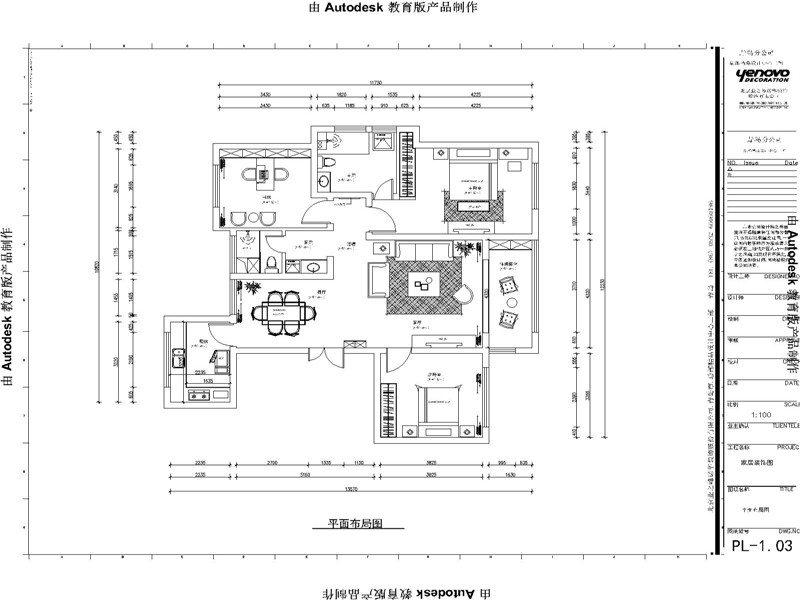
本案位于麦岛海边,依山傍海,地理位置优越,此房南北通透,全明户型,也有两个地方有缺陷,需要改善,一、次卫门对着客厅沙发,解决方法:在客厅沙发墙边上做了一个展示柜,起到遮挡次卫的作用。二、主卧衣帽间形同虚设,储物空间有限,解决方法:把衣帽间墙和主卫南墙拆除,扩大主卫面积,增大卫生间使用空间,衣帽间改成衣帽柜,是主卫变大,储物空间没有减少,又让主卧取物相对方便。
户型图

卧室

厨房


客厅







京公安网备11010502040911