196㎡三居其他时代城
发布时间:
2015年07月26日
小区:时代城 面积:196㎡ 户型:三居 风格:其他
设计说明
本案的设计风格为北欧风格。古代,北欧风格是以哥特式风格为主。风格简洁、直接、功能化且贴近自然,多体现生命力多维度工业艺术品。
在营造天人合一的自然气氛里,北欧人似乎有着不可替代的天赋。永远是材质的精挑细选,工艺的至纯至真手工艺。北欧家具以简约著称,具有很浓的后现代主义特色,注重流畅的线条设计,代表了一种时尚,回归自然,崇尚原木韵味,外加现代、实用、精美的艺术设计风格,正反映出现代都市人进入新时代的某种取向与旋律。
北欧风格设计貌似不经意的搭配之下,一切又如浑然天成般光彩夺目。任何一个空间,总有一个视觉中心,而这个中心的主导者就是色彩。北欧风格色彩搭配之所以令人印象深刻,是因为它总能获得令人视觉舒服的效果——不用纯色而多使用中性色进行柔和过渡,即使用黑白灰营造强烈效果,也总有稳定空间的元素打破它的视觉膨胀感,比如用素色家具或中性色软装来压制。木材是室内装修的灵魂。上等的枫木、橡木、云杉、松木和白桦是制作各种家具的主要材料,它本身所具有的柔和色彩、细密质感以及天然纹理非常自然地融入到家具设计之中,展现出一种朴素、清新的原始之美,代表着独特的北欧风格。
北欧风格,简洁、现代,以浅色为代表,整体感舒适自然,同现代简约风格有着极大的相似,颇受年轻人的喜爱。北欧风格源于欧洲北部,由于该地区靠近北极,气候寒冷,森林资源丰富,因此形成了独特的室内装饰风格。
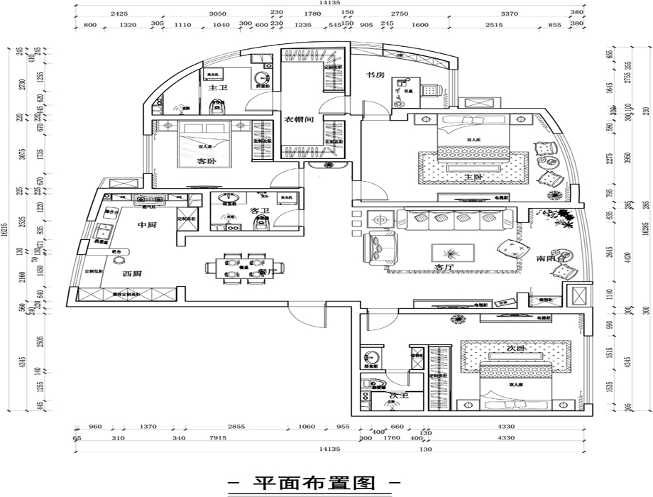
户型图

餐厅

玄关

客厅







京公安网备11010502040911