0㎡三居新中式风格松江宸院
发布时间:
2026年01月11日
小区:松江宸院 面积:0㎡ 户型:三居 风格:新中式风格
设计说明
本案旨在打造一座兼具东方美学神韵与现代生活品质的居住空间。它并非对传统民居形式的简单复刻,而是以现代建筑语言重新诠释中式居住哲学,为当代精英阶层提供一个宁静、优雅、充满文化归属感的精神居所。
轴线与对称: 在主要背景墙、玄关、主要家具布局上,运用隐性轴线与对称原则,营造稳定、庄重的氛围。
本案新中式洋房设计,是一次对传统东方美学的当代转译。它根植于文化,服务于当代,通过纯净的空间、自然的材料、克制的装饰和充满诗意的光影,最终营造出一个能让身心彻底放松、与自我和自然对话的“心之居所”。它不仅是物理的居住容器,更是承载着主人审美情趣与精神追求的文化载体。
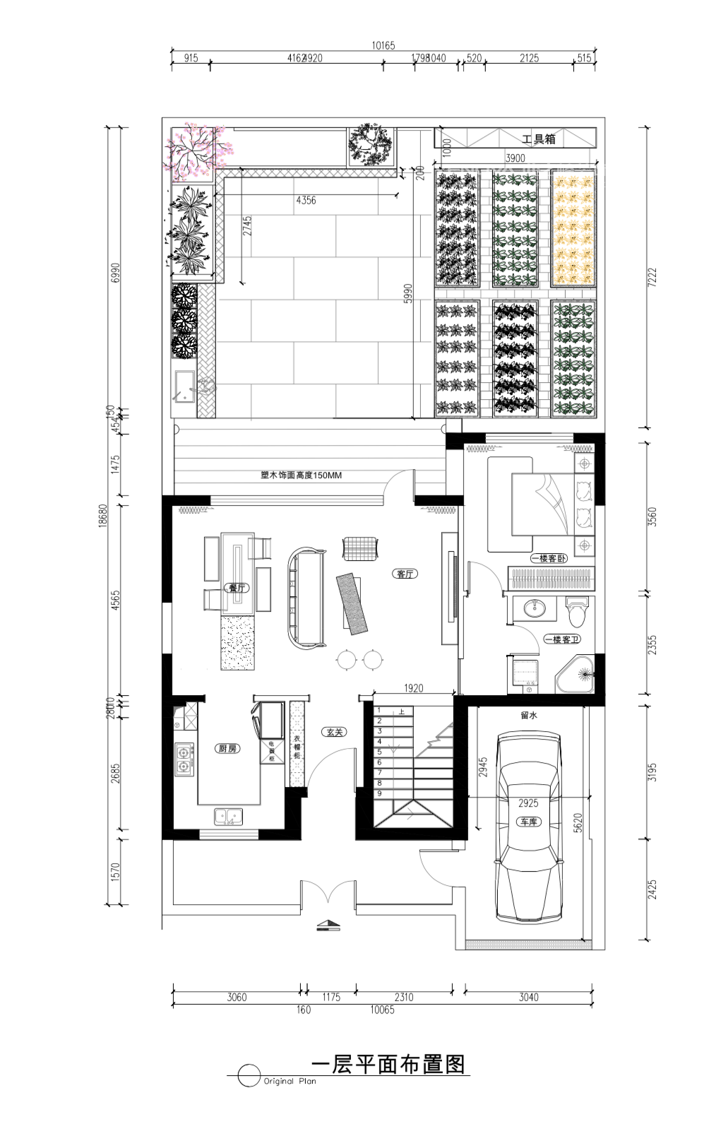
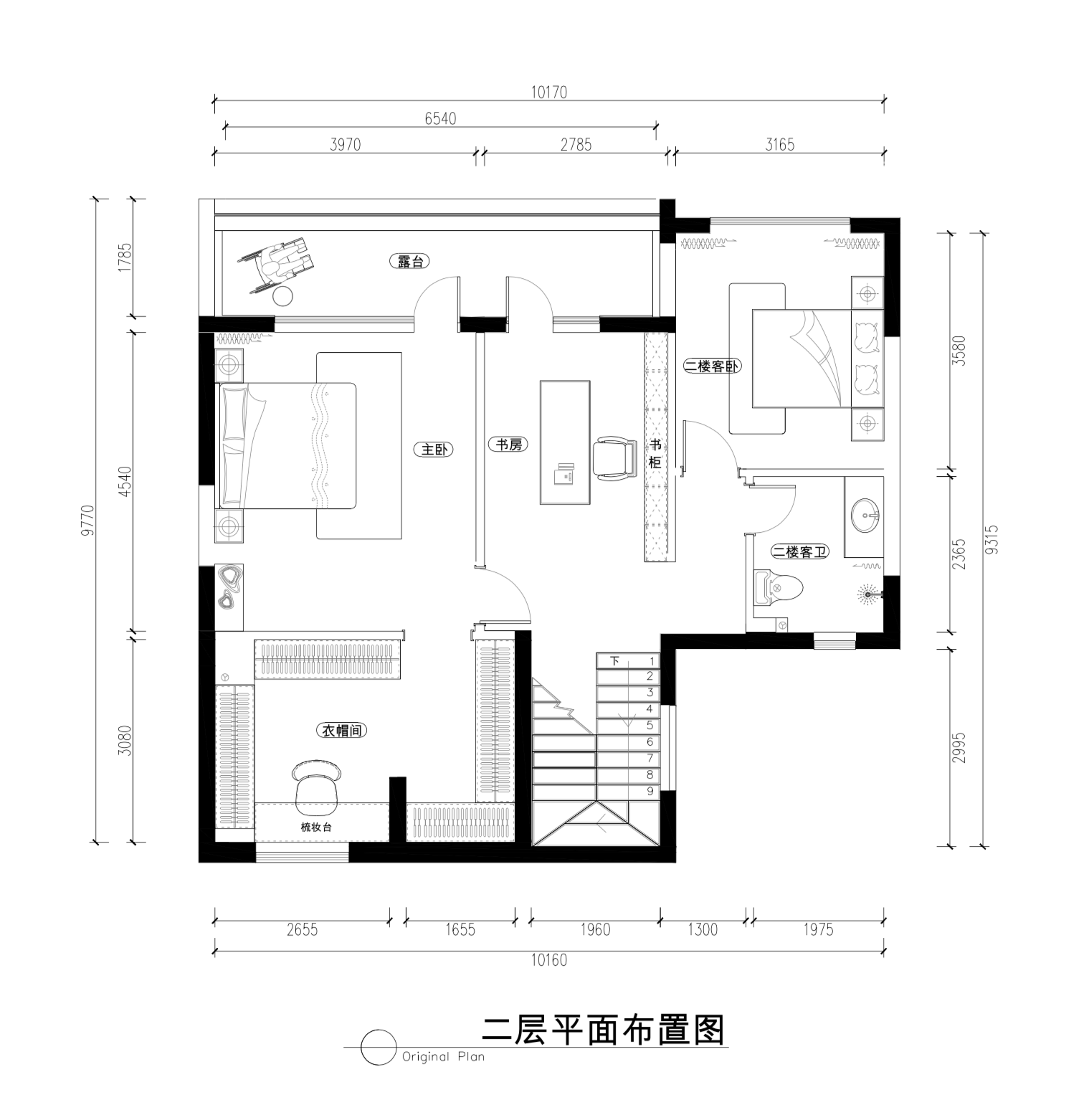
户型图


休闲区



主卧室

客厅



玄关





京公安网备11010502040911