125㎡三居新中式风格金龙花园
发布时间:
2026年01月10日
小区:金龙花园 面积:125㎡ 户型:三居 风格:新中式风格
设计说明
本空间以新中式风格为核心基调,延续优雅、简约的设计理念,选用高品质材料打造质感空间,注重空间层次感与使用舒适度的双重呈现,为居住者营造低调奢华且贴合日常需求的现代家居氛围。入户区域布局简洁实用,门侧规划合理动线,确保入户视野通透。正对面定制专属鞋柜,满足日常鞋履收纳需求,保持入户区域整洁有序;相邻空间自然衔接客餐厅,让整体格局更显开阔流畅,实现功能与美观的平衡。餐厨区域围绕生活实用需求规划,餐桌一侧衔接 U 字型厨房,严格遵循洗菜、切菜、炒菜的人体工程学动线设计,让烹饪流程连贯顺畅,提升日常烹饪的便捷性与舒适度;餐桌另一侧配置餐边柜,与客厅电视背景墙无缝衔接,既有效扩充了储物空间,又让客餐厅视觉风格统一协调,让空间过渡自然无违和。阳台空间聚焦功能收纳与日常使用,专门规划洗衣机放置区域,满足衣物洗护需求;同时搭配小型洗手台盆,方便日常小物件清洗;两侧定制储物柜,分别用于存放扫地机器人、清洁用品及各类杂物,让阳台空间整洁有序,兼顾实用性与收纳性。室内过道设计兼顾功能分区与美观性,右侧打造多功能室,内部暗藏折叠床设计,平时可作为休闲娱乐空间,需要时展开折叠床即可增加居住容纳空间,实现空间的灵活多用;过道左侧将洗手台盆外置,搭配屏风与半高柜,既增加了洗漱用品的存放空间,又巧妙划分过道区域,强化空间层次感,让整体布局更具设计感;卫生间内部采用干湿分离设计,满足日常卫浴使用需求,保持空间干燥整洁。走廊尽头左侧为客卧空间,采用衣柜嵌入墙体的设计,最大化节省室内空间,提升空间利用率;飘窗位置改造为实用书桌,充分利用闲置角落,满足居住者日常办公或学习需求,让客卧兼具休憩与办公双重功能。客卧对面为主卧套间,主卫内部配置独立洗手台与马桶,同时安装钻石型玻璃隔断,实现高效干湿分离,保障卫浴空间的整洁与干燥;卧室左侧定制靠墙衣柜与床头柜,满足衣物收纳与休憩时的置物需求;一物两用,让主卧空间更贴合现代居住者的多元生活需求。
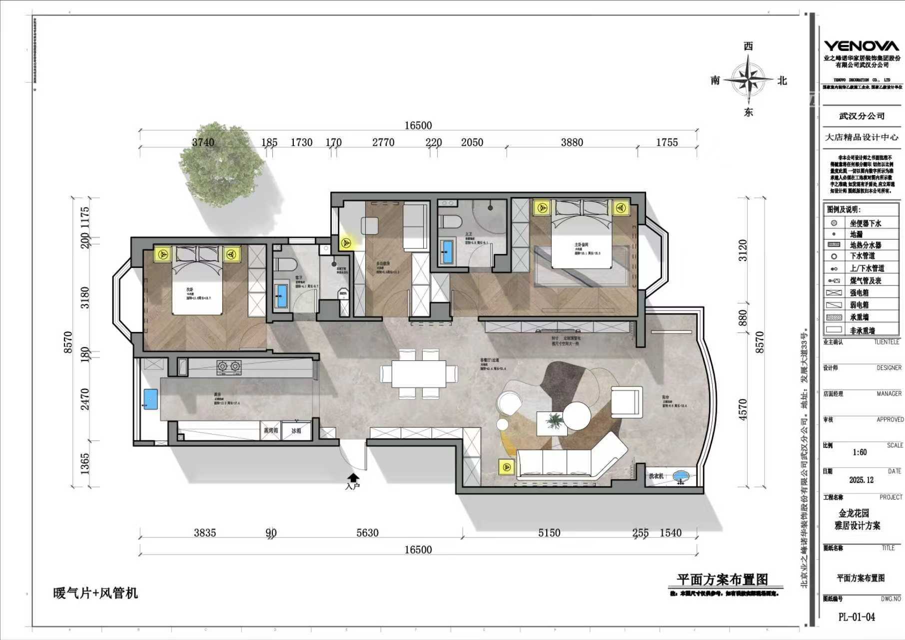
户型图

户型图

客厅






京公安网备11010502040911