188㎡三居现代简约风格银都景园
发布时间:
2026年01月08日
小区:银都景园 面积:188㎡ 户型:三居 风格:现代简约风格
设计说明
男女业主是年轻人,刚从国外毕业回来,喜欢比较年轻化的东西,因为饮食的差异性,导致业主比较喜欢自己做饭,对于生活设施要求比较高
1:厨房充分扩容,方便主人享受做饭的过程
2:卫生间充分扩大,在洗漱以及化妆的同时保持开心的状态
3:独立衣帽间,对于现代年轻人,独立的大衣帽间,已经是必备,新购买的包包以及衣服,通过透明的玻璃门以及灯光更好的展现出来
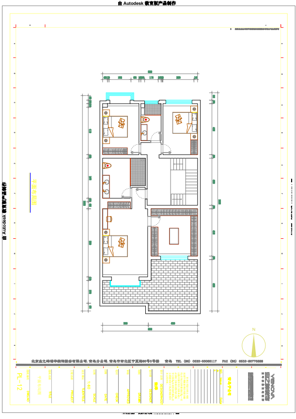
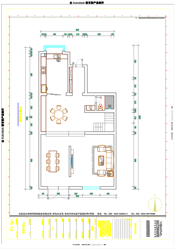
户型图






京公安网备11010502040911