123.1㎡三居宋氏美学世贸·澳洲风情园
发布时间:
2025年12月23日
小区:世贸·澳洲风情园 面积:123.1㎡ 户型:三居 风格:宋氏美学
设计说明
澳洲风情园
宋氏美学风格设计阶段风格总结
一、整体设计定位
本次的设计委托人为黑龙江省哈尔滨市的两位现代年轻女士,经过前期与业主沟通得知
1.业主所喜欢的风格为宋氏美学风
2.希望加入家庭岛台
3.整体空间感要通透
4.有一套红色实木家具
5.对空间采光有需求
本次的设计阶段将以宋氏美学为核心设计语言,将融合哈尔滨地域文化底蕴与现代居住需求,为两位年轻女士打造兼具东方雅致意境与当代生活舒适度的居住空间。将空间整体呈现"雅致、内敛、通透、灵动"的气质,通过对宋代美学精髓的提炼与转译,营造出既有历史文化韵味又不失年轻活力的生活场景。同时业主所珍视的红色实木家具,将被赋予恰当的视觉地位,成为串联传统与现代的关键纽带,打造为空间的重要叙事元素与视觉焦点,精心规划其布局与搭配,使其成为串联传统与现代的关键纽带,赋予空间深厚的文化底蕴与温度。
二、空间布局与功能规划
1. 整体空间策略——通透开放,流动交融
为满足业主对“整体空间感要通透”的核心需求,设计采用“去冗余、重连接”的布局策略。将公共活动区域(客厅、餐厅、厨房)进行一体化设计,减少不必要的实体隔墙,通过家具布置、地面材质变化或半通透隔断等方式进行空间界定,确保视线的延伸与空气的流通。利用23楼的高楼层优势,最大化引入自然光线,使空间更显开阔明亮。
2. 核心功能区设计
(1)家庭岛台——社交与生活的核心枢纽
在开放式厨房与餐厅的过渡区域,精心设计家庭岛台。岛台不仅作为厨房操作空间的延伸,提供额外的料理台面,更承担起早餐台、临时工作台、社交互动中心等多重功能。业主可在此进行简餐制作、与家人朋友小聚闲聊,或是独自品茗阅读,使其成为家中最具活力与互动性的核心区域。岛台材质选择上,考虑温润的石材或实木台面,与红色实木家具形成材质上的呼应与对话,台面下方可结合收纳功能,提升实用性。
(2)客厅区域——宋韵雅致,从容待客
客厅作为接待与日常休憩的主要场所,是宋氏美学的集中体现区。业主的红色实木沙发或座椅将作为此区域的视觉主体,搭配素色的亚麻或棉麻质感的软装,如靠垫、地毯等,中和红木的厚重感,增添空间的舒适度与层次感。背景墙面以素净的浅色为主,可点缀一幅意境悠远的水墨挂画或书法作品,呼应宋画的空灵意境。家具布局注重围合感与交流性,确保动线流畅。
(3)卧室区域——静谧休憩,私享天地
主卧设计延续整体雅致内敛的风格,以营造宁静、舒适的休憩环境为首要目标。色彩上选用低饱和度的中性色调,搭配少量红色实木家具作为点缀,避免过于繁复。注重床品的舒适度与质感。
(4)预留客房——灵活实用,宾至如归
考虑到“预留客房需求”客房设计兼顾实用性与灵活性。空间布局以简洁舒适为原则,配置必要的睡眠、休憩及简易收纳功能。在不影响客房基本功能的前提下,可考虑采用多功能家具,以备不时之需,房屋平时可作为书房或瑜伽室等弹性空间使用,提高空间利用率。
三、设计元素与细节表达
1. 色彩与材质
主色调:以米白、浅白、原木色等中性色为基底,营造宋式美学特有的素雅、宁静氛围。
点缀色:业主的红色实木家具作为空间的重色与亮点,其色彩将被谨慎地引入并控制比例,通过抱枕、花艺、装饰画等软装小面积呼应红色调,形成视觉节奏。
材质选择:地面选用大块浅色哑光瓷砖,墙面以环保乳胶漆为主,局部软装材质偏好棉、麻、丝、羊毛等天然织物,体现宋式的质朴与温润。
2. 光影设计——借景入室,层次丰富
充分利用23楼的高楼层采光优势,通过以下方式优化采光:
扩大或优化窗户设计,保证主要活动区域的采光充足。
采用浅色、反光度适中的材质,提升空间的光线反射效果。
室内灯光设计采用“主灯+辅助灯+氛围灯”的多层次照明系统。主灯造型简约大气,可融入宋式线条元素;辅助灯(如筒灯、射灯)提供基础照明;氛围灯(如落地灯、壁灯、灯带)则重点营造空间的温馨感与层次感,强调灯光的情调营造。
3. 家具与软装——宋韵新绎,雅致共生
红色实木家具:作为空间的主角,其摆放位置需精心考量,确保视觉上的平衡与突出。搭配的其他家具,造型宜简洁流畅,线条以直线与适度的曲线相结合,呼应宋式家具的素雅端庄,避免过于繁复的雕花,材质上可选择白蜡木、胡桃木等浅色或中性色实木,与红色形成对比与和谐。
软装陈设:窗帘选择垂坠感好的亚麻或棉麻材质,色调以素色或淡雅的宋式纹样为主。抱枕、地毯等软装图案可借鉴宋代瓷器、织物上的经典纹样(如缠枝纹、云纹、山水纹等)进行现代化转译。装饰画以山水画、花鸟画、书法作品为主,营造“可观、可游、可居”的意境。绿植选择姿态清雅的品种,如松、竹、兰、梅等,或简约的观叶植物,点缀空间,增添生机与灵动之气。
四、地域文化的微妙融入
哈尔滨的地域文化特色(如欧式建筑风情、冰雪文化等)并非以符号化的形式直白呈现,而是通过材质的对比、色彩的隐喻(如冰雪的纯净色调)、或是某些装饰元素的抽象化处理,巧妙地融入空间细节之中,与宋氏美学的雅致内敛形成一种含蓄而有趣的对话,使空间既具有东方神韵,又不失在地性。
总结
本设计通过对宋氏美学的现代转译,以“雅致、内敛、通透、灵动”为空间气质导向,巧妙融合哈尔滨地域文化与业主的个性化需求。重点打造了通透开放的整体空间、功能复合的家庭岛台、雅致私密睡眠区,并妥善安置了红色实木家具,使其焕发新生。最终呈现的将是一个既能满足两位年轻女士现代生活方式,又能让她们在繁忙都市中寻得一份宋式雅致与宁静的理想家园。
通过以上设计策略,旨在将宋氏美学的雅致意境与现代生活的舒适便捷相融合,同时巧妙地将业主自带的红木家具融入整体空间,为两位年轻女士打造一个既有文化底蕴又不失个性与活力的理想居住家园。
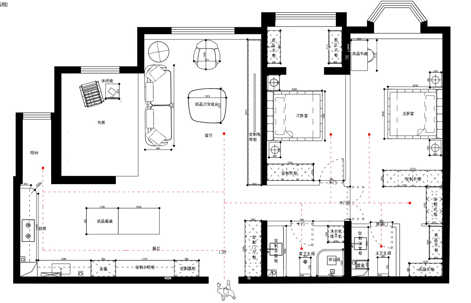
户型图

卫生间



大厅

衣帽间

次卧室

主卧室


厨房


餐厅


客厅








玄关





京公安网备11010502040911