105㎡三居宋氏美学中交锦上
发布时间:
2025年10月29日
小区:中交锦上 面积:105㎡ 户型:三居 风格:宋氏美学
设计说明
客厅运用浅米色与木质元素的搭配,家具造型简约典雅,搭配中式风格的装饰画与摆件,传递出宋式美学的简约与雅致。茶区的木质茶桌设计古朴,与整体风格相得益彰,为空间增添了一份中式韵味。整体布局通透,通过对色彩、材质和传统元素的运用,将宋氏美学的古典雅致与现代生活的舒适便捷完美融合,打造出一个充满文化底蕴的家。
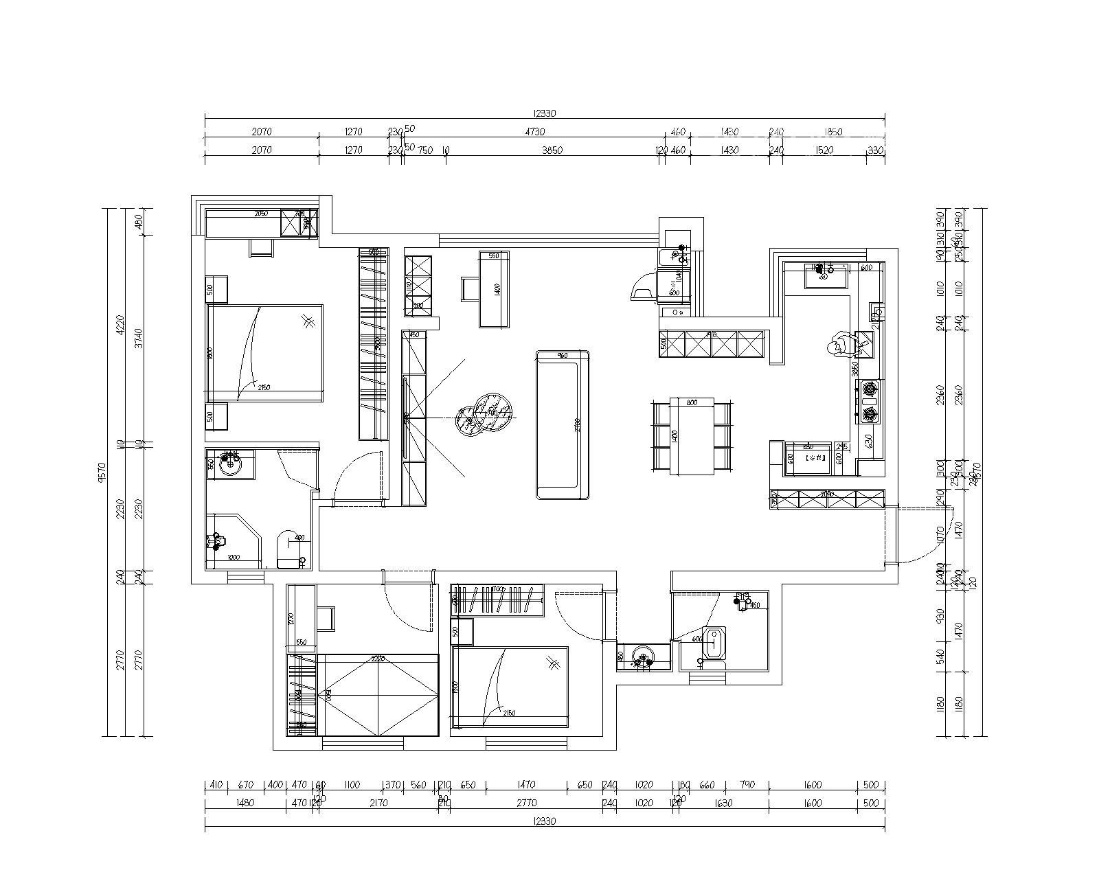
户型图

次卧室


主卧室

厨房

餐厅

客厅







京公安网备11010502040911