340㎡五居新中式风格竹柚塘居
发布时间:
2025年11月22日
小区:竹柚塘居 面积:340㎡ 户型:五居 风格:新中式风格
设计说明
楼盘:竹柚塘居
面积:340
风格:现代新中式
户型:⑤室2厅5卫
本设计围绕“长住父母+节日多代同堂”的居住需求,以现代简约风格为基调,融合温馨家庭氛围与欢快活泼的生活方式,打造功能与情感兼具的全龄化居所。
风格与氛围营造
• 整体采用米白、原木棕为主的柔和色系,搭配简洁的线条与无冗余的装饰,体现现代简约的利落感;同时通过暖光照明、自然材质(藤编、实木)的细节运用,传递温馨治愈的家庭温度。
• 公共区域(客餐厅、茶区)融入轻量化的中式元素(如禅意摆件、木质茶台),既契合父母的审美偏好,又以现代设计语言呈现,避免风格厚重感;儿童活动相关的软装(如活泼的花艺、趣味摆件)则为空间注入欢快气息。
功能分区与空间适配
居住空间
• 长辈房:布局通透且动线简洁,配置舒适大床、充足储物空间,辅以柔和的灯光与自然景观窗,营造静谧且便利的居住环境,满足父母长住的日常起居需求。
• 子女客房:多间卧室采用灵活设计,床具与收纳系统兼顾短期居住的实用性,软装风格统一中带有细微差异,让每支小家庭都能感受到专属感。
公共空间
• 客餐厅:开放式布局增强互动性,圆形餐桌可容纳多人聚餐,契合节日家庭团聚的场景;顶部环形灯光设计现代感十足,同时提升空间温馨度。
• 多功能书房:双办公位设计满足远程办公需求,充足的书架与展示区可收纳书籍、陈列家庭纪念品,也能成为孩子假期学习、长辈阅读的共享空间。
• 茶区:作为家庭情感交流的核心区之一,木质茶台与景观窗结合,既可供父母日常品茗休闲,也能成为节日里全家围坐、畅谈的温馨角落。
厨房空间
• U型厨房:动线流畅,充足的操作台面与储物空间满足多人同时备餐的需求,现代家电的嵌入提升烹饪效率,让节日家宴的准备过程也能充满协作的欢乐。
细节设计巧思
• 灯光系统:采用“主灯+辅灯+氛围灯”的分层设计,公共区域明亮开阔,卧室区域柔和静谧,既满足功能照明,又通过暖光营造温馨团聚的氛围。
• 收纳规划:全屋定制柜采用“隐藏式+展示式”结合的方式,既解决多人口家庭的储物需求,又通过开放格展示家庭藏品、孩子手作,强化空间的生活气息与情感联结。
• 互动场景:公共区域预留充足的活动空间,可满足孩子嬉戏、家庭游戏等需求,让欢快活泼的生活方式在空间中自然落地。
此设计通过空间的多功能适配、风格的温馨平衡,实现了“日常尽孝+节日尽欢”的居住愿景,让现代简约风格成为承载家庭情感、演绎活泼生活的理想载体。
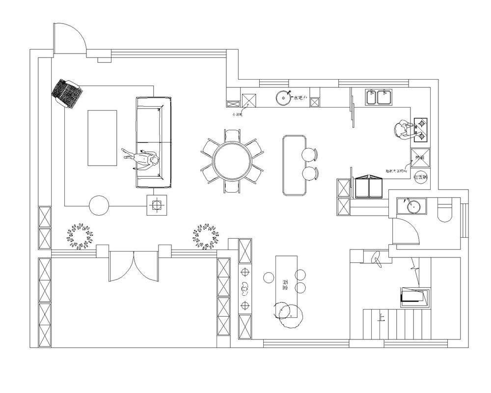
户型图

餐厅

书房

卧室




厨房

客厅





京公安网备11010502040911