110㎡三居日式风格西延锦绣
发布时间:
2025年11月22日
小区:西延锦绣 面积:110㎡ 户型:三居 风格:日式风格
设计说明
楼盘:西延锦绣
面积:110
风格:日式原木
户型:套三单卫
日式原木风“小生意·暖生活”空间设计说明
本设计围绕“年轻小两口带女娃+小生意从业者”的核心需求,以日式原木风格为载体,融合生活烟火气与创业闯劲,打造兼具功能性、治愈感与情感温度的家。
一、风格定位:日式原木的“质朴与治愈”
选取日式原木风格的核心元素——天然木材肌理(橡木、桧木等)、低饱和色调(原木色、米白、浅灰)、简约线条感,营造自然温润的空间基底。同时打破传统日式的“清冷感”,注入小生意家庭的烟火气与亲子互动的温馨感,让风格更适配“创业+带娃”的生活节奏。
二、功能布局:生意与生活的“共生共融”
1. 公共空间(餐厨、客厅)
• 开放式餐厨:既是家庭日常烹饪、亲子共餐的核心区,也可作为小生意“试吃体验”“轻社交”的延伸空间。原木餐桌兼具“家用饭桌”与“临时展示台”功能,餐边柜收纳餐具的同时,可陈列生意相关的伴手礼、宣传物料,让生活与工作自然衔接。
• 客厅互动区:原木沙发、圆形木茶几打造松弛感社交场,既是小两口谈生意、复盘工作的“迷你会议室”,也是女儿玩耍、全家观影的休闲地。电视背景墙的原木收纳柜,可分类收纳生意文件、家庭杂物与孩子的玩具绘本,实现“功能三合一”。
2. 私密空间(卧室、儿童房)
• 主卧:原木床具、衣柜传递日式“侘寂感”,营造疗愈的休憩氛围,让忙碌一天的创业者能快速放松。空间预留“迷你工作台”区域,可处理生意线上事务,兼顾“休息+轻办公”。
• 儿童房:以“原木童话镇”为主题,定制日式原木儿童床、书桌,搭配弧形设计与柔和灯光,打造安全且充满童趣的成长空间。增设“模拟小摊位”装置(原木小货架、卡通价签),让孩子在游戏中模仿父母做生意的场景,强化家庭职业认知与亲子互动。
三、细节设计:情感与风格的“双向赋能”
• 材质联动:全屋采用同色系原木(如地板、家具、局部墙面),通过纹理深浅变化营造层次,既体现日式风格的“统一感”,又用木材的天然温度消解创业的疲惫感。
• 软装巧思:女儿的“手绘营业招牌”、生意首单的“纪念伴手礼”作为软装陈列,将家庭记忆与职业成就融入空间,让日式原木的“质朴”更具故事性。
• 光影营造:结合日式“自然采光+柔和人工光”的设计逻辑,大窗引入充足 daylight,搭配原木色落地灯、嵌入式灯带,让空间在白天显通透、夜晚显温馨,适配“早出晚归”的生意作息与亲子陪伴时光。
本设计不仅是日式原木风格的空间呈现,更是对“小生意家庭如何平衡事业与生活”的一次探索——以木材的温暖为纽带,让创业的闯劲与带娃的柔情在空间里共生,最终成就“原木暖居,三餐四季”的小确幸版图。
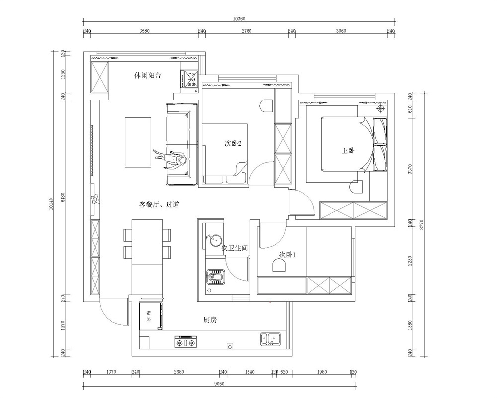
户型图

餐厅

阳台

客厅



次卧室


主卧室






京公安网备11010502040911