125㎡二居意式极简中海寰宇天下
发布时间:
2025年10月31日
小区:中海寰宇天下 面积:125㎡ 户型:二居 风格:意式极简
设计说明
这是一套实景落地拍摄,卧室定制衣柜嵌入墙体,营造整洁静谧氛围;全屋以米灰、深棕为基调,搭配大理石、玻璃等材质,在极简形态中尽显意式美学的高级质感与生活温度。
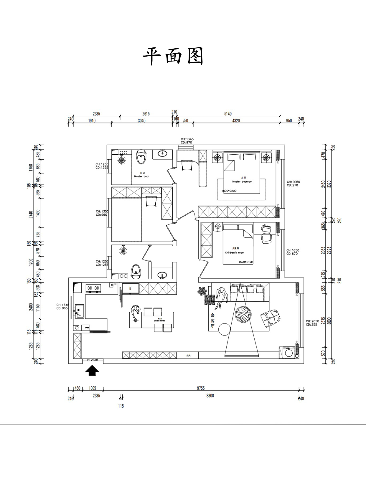
户型图

卫生间


次卧室

主卧室



餐厅

休闲区

餐边柜
大厅






京公安网备11010502040911