150㎡三居现代简约风格金座晟锦C区
发布时间:
2025年10月17日
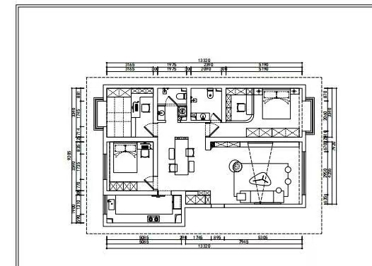
小区:金座晟锦C区 面积:150㎡ 户型:三居 风格:现代简约风格
设计说明
本案位于西宁市海湖新区,是一套三室两厅两卫的户型。屋主希望在主卧有个超大的衣帽间可以满足储物需求,整体风格上比较倾向于现代轻奢。经过设计师的重新规整,该客厅设计精准锚定现代轻奢风格内核,在材质运用与光影塑造上展现出精妙的设计逻辑。无主灯设计适配多元空间,撞色搭配、大理石的冷冽质感,与布艺沙发的温润、金属线条的精致形成多元碰撞,完美诠释了现代轻奢风格在居住空间中“简而不凡,奢而有度”的设计主张。
户型图

厨房

上浅下深的配色原则
次卧室

通顶大衣柜
主卧室

开放衣帽间
餐厅

岛台
客厅

灵动亲切的社交空间