150㎡三居轻奢风格曲江城市树
发布时间:
2025年08月14日
小区:曲江城市树 面积:150㎡ 户型:三居 风格:轻奢风格
设计说明
本套家居设计以 “都市轻奢・理性与质感的交融” 为核心,选取深棕、灰咖为主色调,融合大理石、金属、哑光板材等材质,在理性秩序中营造出充满高级感的居住体验。
客厅借大落地窗引入城市景观,浅灰色布艺沙发与红色艺术单椅形成视觉张力,定制收纳柜结合线性灯光,既满足展示与储物需求,又让空间层次更显丰富,成为兼具社交与休憩功能的核心场域。卧室以极简线条的床具为核心,垂吊灯具与几何感艺术画点缀其间,全屋定制柜体隐于墙面,在保障收纳的同时,让休憩氛围更显静谧高级。
餐厨区域采用一体化设计,餐厅卡座与岩板餐桌优化小空间利用效率,玻璃隔断使厨房与餐厅 “隔而不断”,既保证烹饪区的独立,又让空间通透感得以延续;厨房以深灰石材墙面搭配哑光柜体,智能厨电与暗藏灯带的结合,让烹饪场景既精致又便捷。卫浴间则以灰色大理石纹瓷砖奠定高级基调,智能镜柜、嵌入式收纳与黑框玻璃淋浴房的组合,将科技感与整洁感融为一体,金属元素的点缀更添轻奢气质。
整体设计通过深色系的质感表达、材质的细腻碰撞与功能的精细化布局,让家成为都市生活中兼具品质感与舒适感的私属领地,完美平衡了现代轻奢美学与日常使用需求。
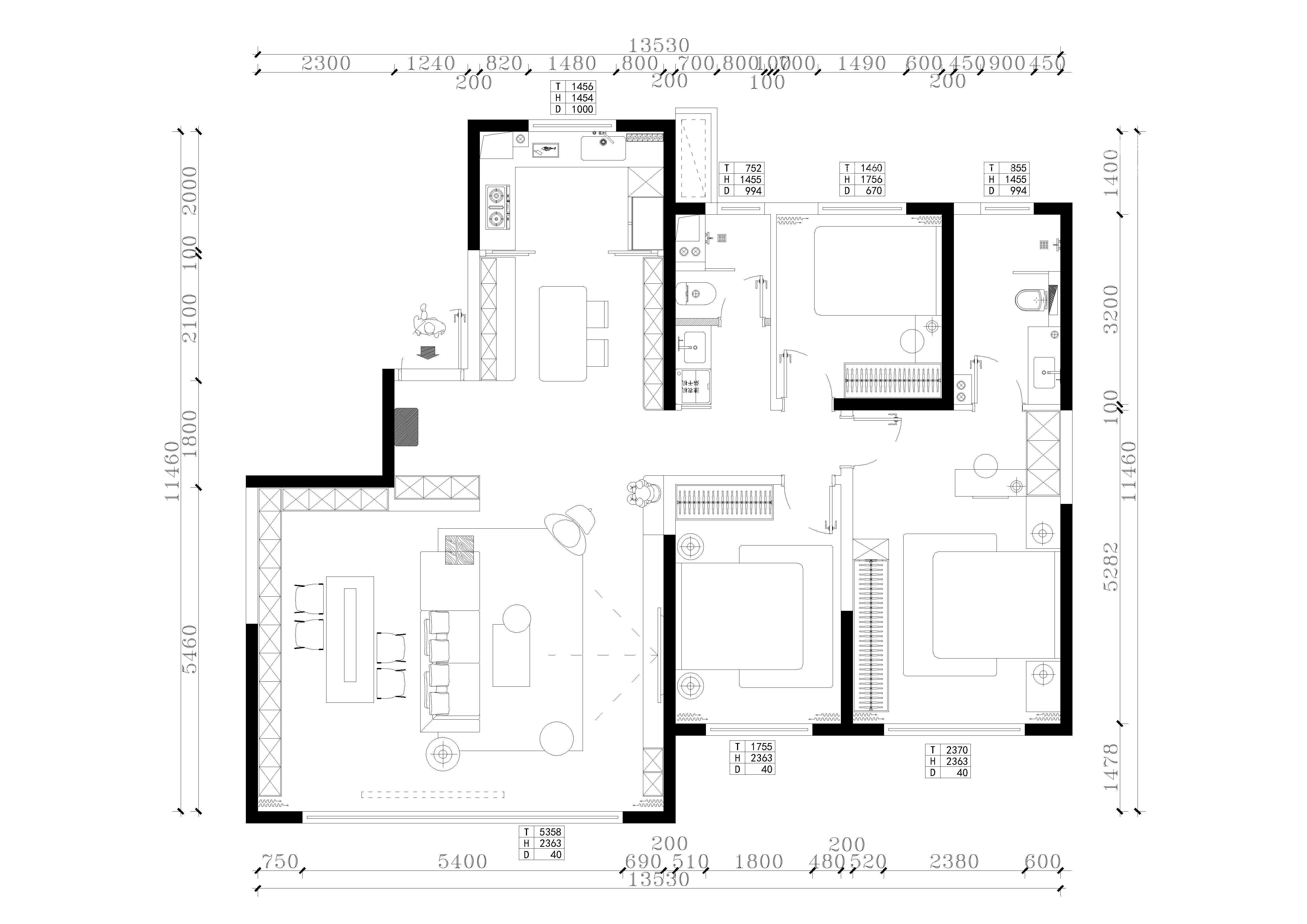
户型图

卧室


餐厅

厨房

玄关

客厅





京公安网备11010502040911