160㎡四居现代简约风格红星天阙
                  发布时间:
                  2022年10月10日
                
 小区:红星天阙 面积:160㎡ 户型:四居 风格:现代简约风格
设计说明
 现代风格是比较流行的一种风格,追求时尚与潮流,非常注重居室空间的布局与使用功能的完美结合。
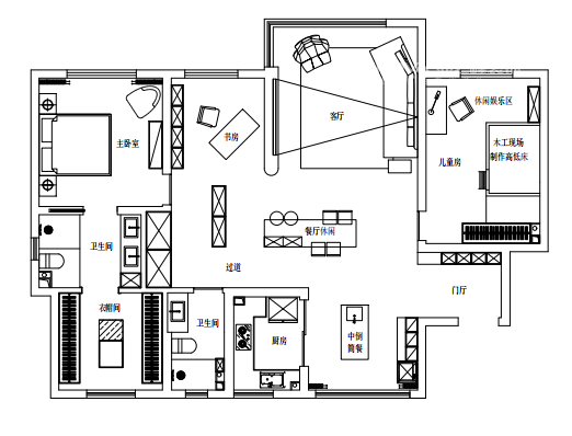
户型图
 

卧室
 
                        现代风格是比较流行的一种风格,追求时尚与
                      

                        现代风格是比较流行的一种风格,追求时尚与
                      

                        现代风格是比较流行的一种风格,追求时尚与
                      
客厅
 
                        现代风格是比较流行的一种风格,追求时尚与
                      
休闲区
 
                        现代风格是比较流行的一种风格,追求时尚与
                      
餐厅
 
                        现代风格是比较流行的一种风格,追求时尚与
                      
儿童房
 
                        现代风格是比较流行的一种风格,追求时尚与
                      

 
 


 京公安网备11010502040911
京公安网备11010502040911