140㎡四居轻奢风格保利湖心岛
发布时间:
2022年07月16日
小区:保利湖心岛 面积:140㎡ 户型:四居 风格:轻奢风格
设计说明
现代轻奢侈风格也是一种现代风格,但不同于传统的现代风格,现代奢侈与色彩的运用形成了鲜明的对比。常用的高级黑色和高级灰色作为一种表现,给人一种空间整洁的感觉。并添加亮度较高的橙色,亮面金属等,为客厅和卧室呈现一种温馨的氛围,时尚典雅的风格。
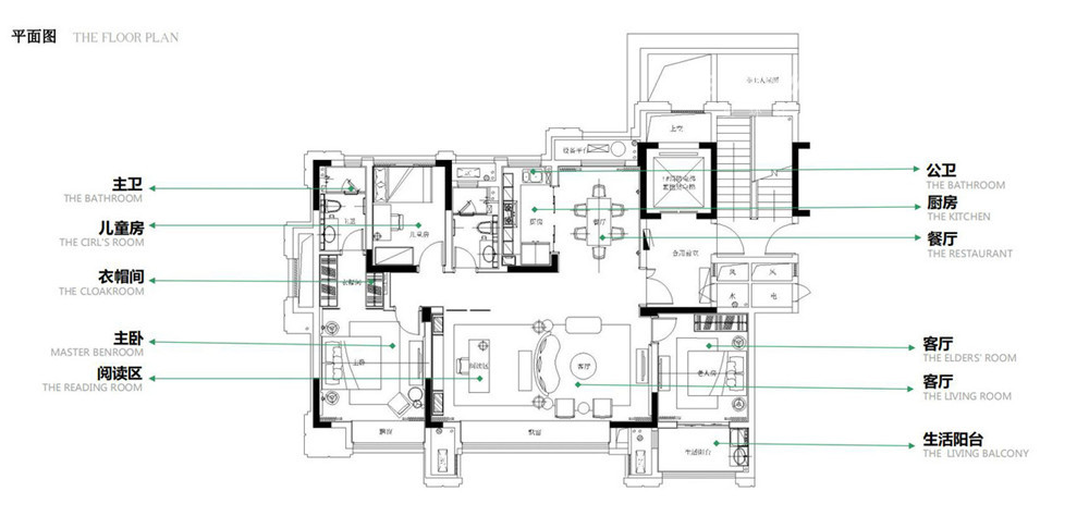
户型图

卧室


玄关

客厅






京公安网备11010502040911