156㎡三居轻奢风格东南智汇城
发布时间:
2022年01月06日
小区:东南智汇城 面积:156㎡ 户型:三居 风格:轻奢风格
设计说明
石家庄业之峰装饰东南智汇城156平米现代轻奢风格装修设计,应业主要求,业主喜欢现代风格的时髦设计,于是团队在空间布局的过程中设计了大量平滑流线型的墙面,让空间划分鲜明。后期软装过程中,通过深色与金属色的搭配使空间呈现延伸感,配合简洁造型的吊顶,让整体装修别具一格。
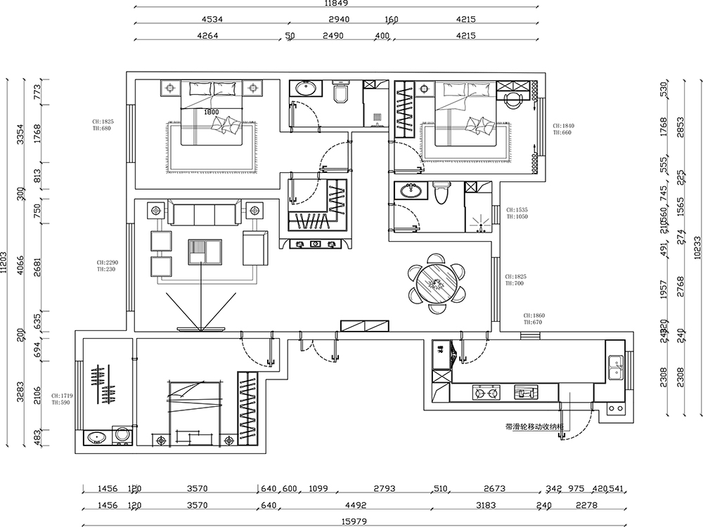
户型图

卫生间


卧室



玄关

餐厅


客厅






京公安网备11010502040911