104㎡三居北欧风格英郡年华国际社区
发布时间:
2021年10月20日
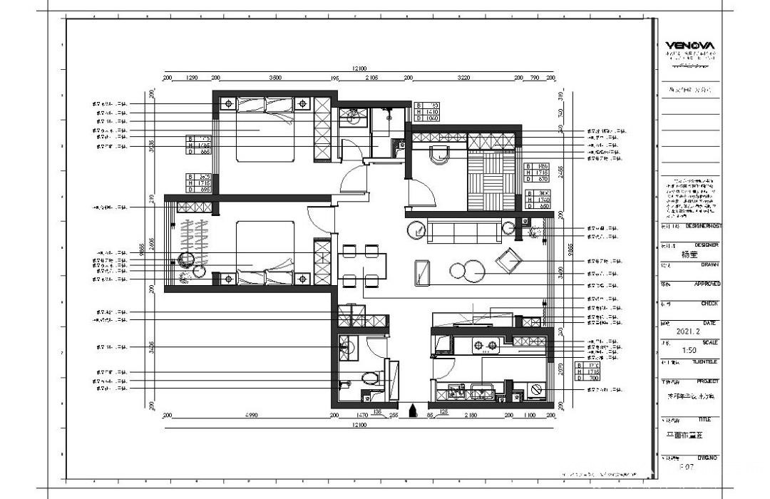
小区:英郡年华国际社区 面积:104㎡ 户型:三居 风格:北欧风格
设计说明
户型的优点:本户型是从从东向西进入,户型朝西。通透,室内通风理想。全明户型,各部分空间均有窗,可保证整体空间采光和通风。
户型的缺点:入户狭小,厨房狭小储物量不足。
本案为三室二厅二卫一厨的多层住宅.室内使用面积为71.4m²,在原始结构上,本案设计师拆除客厅墙体使客厅及阳台融为一体,增加采光,拆除厨房一部分墙体,扩大厨房储物量和使用,本案例为一三口之家为依据进行设计,突出温馨且不失时尚之感。本案设计师以简洁明快的设计风格为主调,全面考虑,在总体布局方面,尽量满足三口之家生活上的需求。
本案设计师主要运用北欧风格,优雅不失亲切的生活环境,既有实用性又颇为舒适,北欧风格通常线条简单,除了橱柜为简单的直线直角外,沙发、床架、桌子亦为直线或简洁流畅的曲线条,造型简单,富含设计意味但不夸张。
户型图

卧室

客厅




儿童房





京公安网备11010502040911