95㎡二居美式风格永泽五里州
发布时间:
2021年09月23日
小区:永泽五里州 面积:95㎡ 户型:二居 风格:美式风格
设计说明
时光的脉络里,推开一扇门,微风不燥,阳光正暖,沏一杯好茶,浅酌慢品绿茵、鲜花、藤椅、茗香、书籍、琴声温柔的环绕悠悠下午茶,静静漫时光.
艺术感的单品突出点亮了空间,现代壁画与原木的家具,小件装饰和单椅的美式造型使艺术的跃动之美赋于空间之上仿壁炉造型使空间看起来更有温度一日三餐,四季烟火,花瓶与装饰,在色彩上与客厅呼应,将艺术的美感注入于生活的表里之间,大理石的冰冷与绒布相互融合,把餐厅的温度调节到刚刚好,主卧空间以层次丰富的中性色为底,搭配简约雅致软装点缀,打造出时尚艺术,富有格调的生活空间。
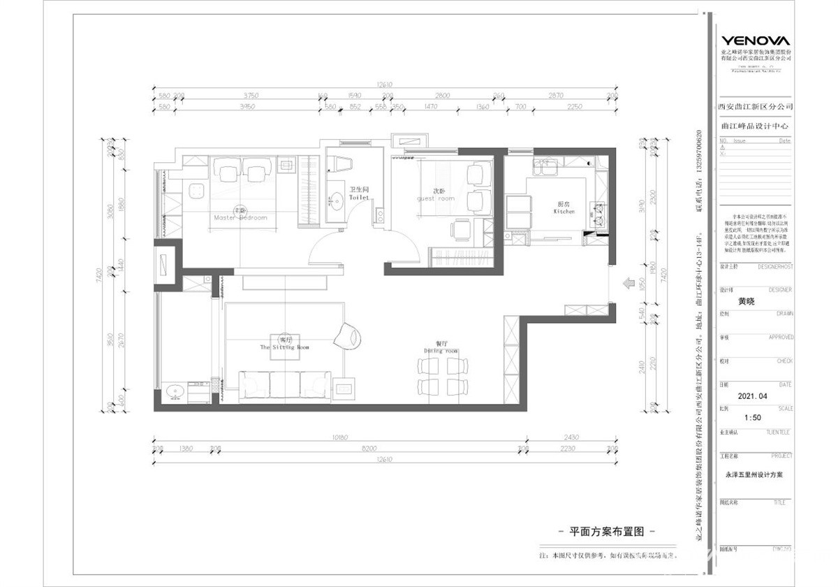
户型图

卧室

客厅





餐厅





京公安网备11010502040911