210㎡复式美式风格紫薇田园都市
发布时间:
2021年09月17日
小区:紫薇田园都市 面积:210㎡ 户型:复式 风格:美式风格
设计说明
美式风格,顾名思义,是来自于美国的装修和装饰风格,美式风格源自美国人由来已久的文化氛围与包容世界的态度,没有太多造作的修饰与约束,不经意中也成就了另外一种休闲式的浪漫。
而美国的文化又是一个移植文化为主导的脉络,它有着巴洛克的奢侈与贵气,但又结合了美洲大陆这块水土的不羁,这样结合的结果是剔除了许多羁绊,但又能找寻文化根基的新的怀旧、贵气加大气而又不失自在与随意的风格。而轻奢风,则偏向于简约又略带点儿奢华的特点。轻奢风一般以浅色偏冷色调为主,近两年大火的轻奢风格和放荡不羁的美式风格结合混搭,注定是一场华贵与极简的碰撞。美式轻奢风格,华丽而不张扬,深受到不少人的喜爱。
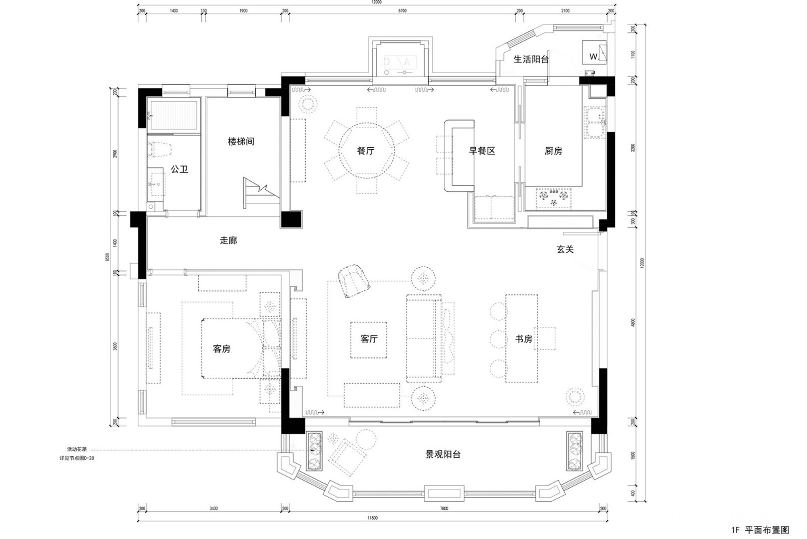
户型图

客厅



卧室

儿童房

休闲区

餐厅

书房





京公安网备11010502040911