300㎡平层新中式风格金旅城
发布时间:
2021年08月25日
小区:金旅城 面积:300㎡ 户型:平层 风格:新中式风格
设计说明
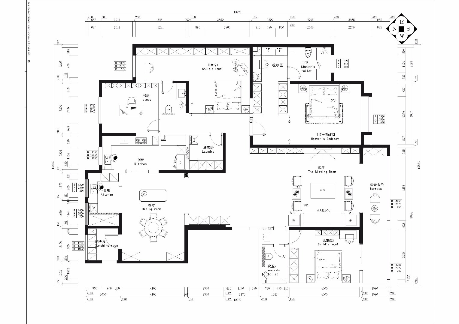
此方案常住人口4人,一对中年夫妻,两个孩子。根据客户喜好和性格,在设计中中注重中式设计手法,带给客户美的平衡和序的严谨。在设计中考虑了全家公共区域的动线,生活习惯,保留了客餐厅的通透性,使空间视野更加广阔。客卫干湿分离,湿区的窄隔断既有利于水渍处理,又能隔离水珠喷溅到马桶上。孩子房在细节和色彩中添加了年轻化的元素,使整个空间更加活泼。
户型图

卫生间

卧室


客厅




餐厅





京公安网备11010502040911